О квартире
Площадь
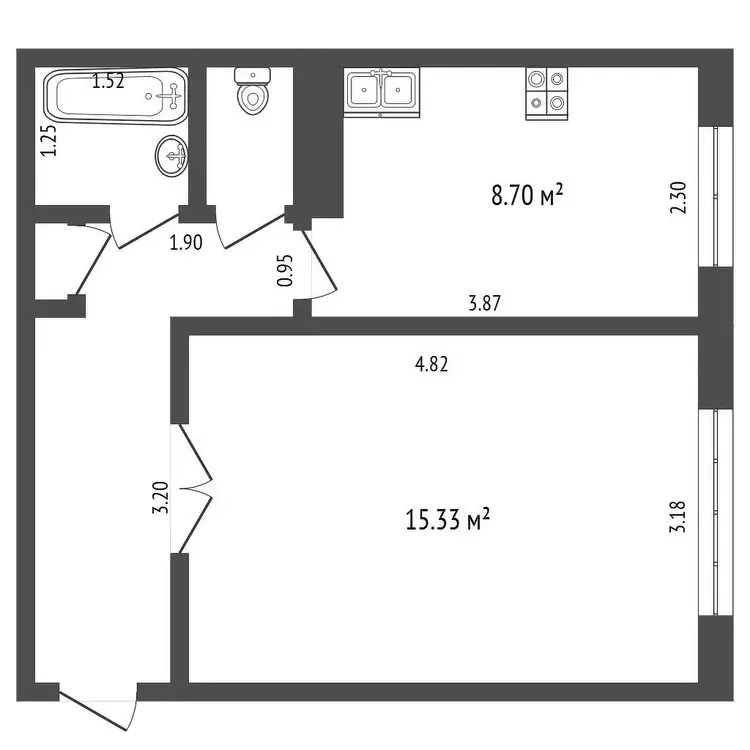
33.67 м2
общая
15.33 м2
жилая
8.7 м2
кухня
Отдельных комнат
1 комната
Санузел
раздельный
Тип ремонта
Хороший
О доме
Этаж
1 из 5
Материал стен
Панельный
Год постройки
1975
Описание
Вадим — агент
2 года на сайте
Условия сделки:продажа
Показать почту
Пожаловаться на объявление
Агентство недвижимости
ООО «ЭТАЖИ юнайтед»
УНП: 193673318 Лицензия: Министерство юстиции РБ, 2023-04-03
Договор №: 2176/1 от 2025-10-09

















