Выберите валюту для сайта:
BYN
Подать БЕСПЛАТНО
Объект в архиве
К результатам поиска

Аренда офиса на ул. Лили Карастояновой, д. 32 в Минске, 215USD, код 13599

43 м2 5 этаж из 5 Советский район / Беды
Объект в архиве
Уважаемые пользователи, данное объявление больше не актуально. Поэтому мы убрали все контакты продавца.
Продолжить поиск
Офис
Город Минск
Район Советский район
Микрорайон Беды
Адрес ул. Лили Карастояновой, д. 32
Год постройки 2007 г.
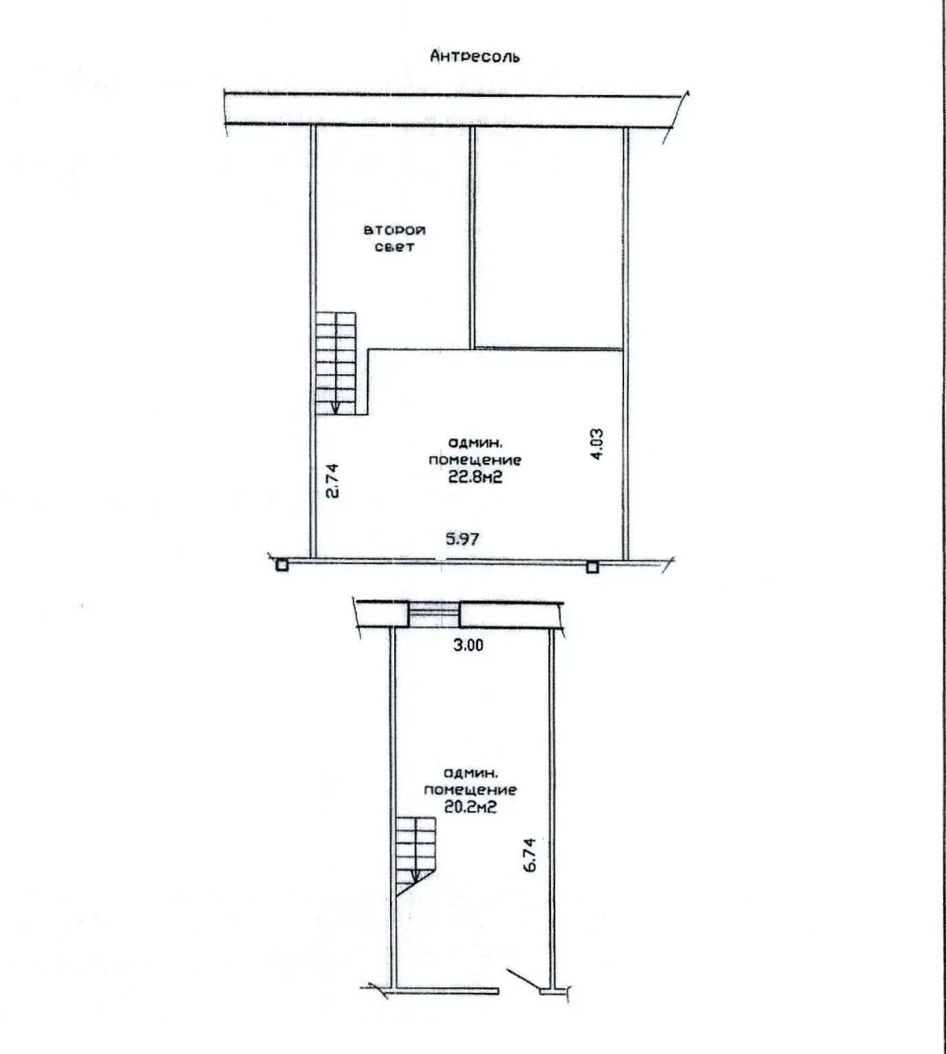
Площадь 43 м2
Этаж 5

Описание

Помещение 43 м.кв. в 2 уровнях на 5 этаже бизнес-центра на Карастояновой 32.

Арендатор не оплачивает услуги агентства!

Компактное светлое, тёплое пространство.

Отлично подойдет под услуги, офис.

В помещение заведена вода и канализация.

В здании имеется лифт.

Просторная парковка.

Рядом парк Дружбы Народов.

НДС включен в стоимость.

Коммунальные услуги: зима - ок. 5,8 р/м2, лето - ок. 3,5 р/м2.

Нет проблем с общественным транспортом.

Звоните!

---

ООО «ЭТАЖИ юнайтед»
УНП: 193673318
Договор № 1/1а от 10.01.2025
Лицензия на оказание риэлтерских услуг №02240/460 МЮ РБ от 03.04.2023

Код объекта: 13599 Договор с собственником: №1/1а от 2025-01-10 Опубликовано: 13.01.2025 Обновлено: 11.10.2025
Динамика цен за кв. метрДинамика цен
Похожие объекты
Адрес
Комнат
Площадь
Этаж
Цена за м2
Цена
140 м2
1 из 4
34 р. за м2
+
Фильтр сохранен