Выберите валюту для сайта:
BYN
Подать БЕСПЛАТНО
Объект в архиве
К результатам поиска

Купить офис на ул. Мележа, д. 5/2 в Минске, 74000USD, код 9294

72 м2 4 этаж из 16 Советский район / Беды
Объект в архиве
Уважаемые пользователи, данное объявление больше не актуально. Поэтому мы убрали все контакты продавца.
Продолжить поиск
Офис
Город Минск
Район Советский район
Микрорайон Беды
Адрес ул. Мележа, д. 5/2
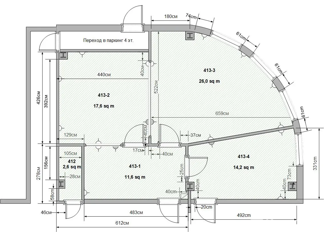
Площадь 72 м2
Помещений 5
Этаж 4
Удобства
Телефон
Круглосуточный доступ
Отдельный вход
Лифт
Парковка

Описание

Продается офис     с      арендаторами от собственника в современном бизнес-центре по ул.Мележа, 5 корп. 2. Площадь 72 м*2. Четыре комнаты 11,6;   17, 6;   26;   14, 2 + туалет 2, 6 м*2. Хорошее дизайнерское освещение, вентиляция, отопление. Четыре телефонные линии, интернет. Стеклянные перегородки, евроотделка. Два входа, переход в паркинг.  Рядом два паркинга, 5 зон для парковки, минимаркеты, торговый центр, аптека, отделение банка, остановка автобуса 24.

Сейчас арендаторы платят 1600 руб. аренды в месяц и полностью оплачивают коммуналку.  Платят хорошо, регулярно. Переводят авансом сразу за 3 месяца. Много вложились в ковролин и отделку. На фото виды построенного офиса и его состояние сейчас. Их привлекает много мест для парковок возле здания и возможность арендовать место в паркинге за 100 руб./мес. и прямо приезжать на 4 этаж.

Код объекта: 9294 Опубликовано: 05.10.2025 Обновлено: 04.11.2025
Динамика цен за кв. метрДинамика цен
Похожие объекты
Адрес
Комнат
Площадь
Этаж
Цена за м2
Цена
1-комнатная
167.1 м2
14 из 14
2 673 р. за м2
2-комнатная
49.3 м2
1 из 18
2 016 р. за м2
60.4 м2
1 622 р. за м2
+
Фильтр сохранен