Выберите валюту для сайта:
BYN
Подать БЕСПЛАТНО

Снять офис на ул. Медовая, д. 1 в Гродно, 3256USD, код 16616

407 м2 2 этаж из 3 Ленинский район / Переселка
9 691 р./мес.
Офис
Город Гродно
Район Ленинский район
Микрорайон Переселка
Адрес ул. Медовая, д. 1
Год постройки 2020 г.
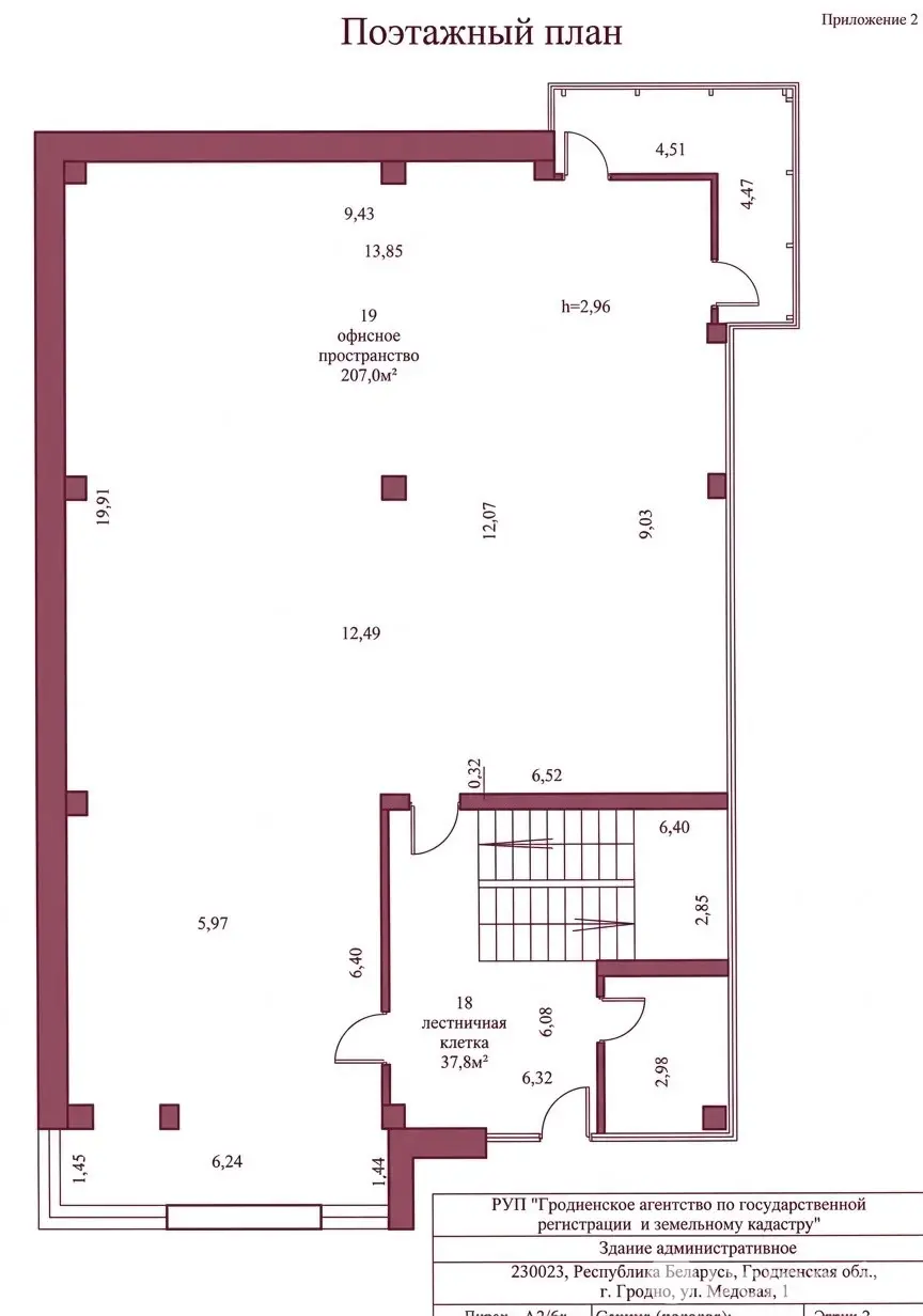
Площадь 407 м2
Помещений 2
Этаж 2

Описание

Офисные помещения Ул.Медовая, д.1 2/3 этажного дома 2020 года постройки 407 кв.м. Сдаётся стильный современный офис Open Space общей площадью 407 м² на 2 и 3 этажах нового бизнес‑центра 2020 года постройки по адресу: г. Гродно, ул. Медовая, 1. • Общая площадь: 407 м² (2 этаж — 207 м², 3 этаж — 200 м²). • Планировка: открытое пространство формата open-space + отдельный кабинет для переговоров. • Высота потолков около 3 м, большие витражные окна обеспечивают много естественного света и панорамный вид. • Современная отделка в нейтральных тонах, подвесные потолки с LED‑освещением, ковровое покрытие. • Импортная эргономичная мебель: рабочие станции с перегородками, кресла, тумбы — можно сразу заезжать и работать. • Удобная зонировка: рабочая зона, переговорная, зона ожидания/рецепции, лаунж‑зона у панорамных окон. Инфраструктура и удобства: санузлы на каждом этаже, помещение для уборочного инвентаря, надёжные инженерные системы, возможность высокоскоростного интернета, парковка за зданием и удобный подъезд. Дополнительно по договорённости: доступ к кухням, спортзалу, игровой и другим зонам отдыха. Локация: динамично развивающийся деловой район рядом с центром, высокий автомобильный и пешеходный трафик. Возможность размещения вашей рекламы на крупной медиа‑афише/бегущей строке на фасаде здания. Подойдёт для IT‑компаний, проектных команд, колл‑центров, консалтинга, финансовых и страховых компаний, учебных центров и представительств крупных организаций.
Код объекта: 16616 Договор с собственником: #3/6А от 09.08.2025 Опубликовано: 07.03.2026 Обновлено: 07.03.2026
Динамика цен за кв. метрДинамика цен
Похожие объекты
Адрес
Комнат
Площадь
Этаж
Цена за м2
Цена
1-комнатная
207 м2
2 из 3
24 р. за м2

Вы просматривали

9 691 р./мес. 24 р. за м2
Ленинский р-н
Офис, 407 м2
Гродно, ул. Медовая, д. 1
9 691 р./мес.
24 р. за м2
Ольга
Пожалуйста, скажите, что нашли этот объект на Domovita.by
+
Фильтр сохранен