Выберите валюту для сайта:
BYN
Подать БЕСПЛАТНО

Снять офис на ул. Солнечная, д. 5 в Гродно, 11458BYN, код 16157

477.4 м2 1 этаж из 2 Октябрьский район / Фолюш
11 458 р./мес.
Офис
Город Гродно
Район Октябрьский район
Микрорайон Фолюш
Адрес ул. Солнечная, д. 5
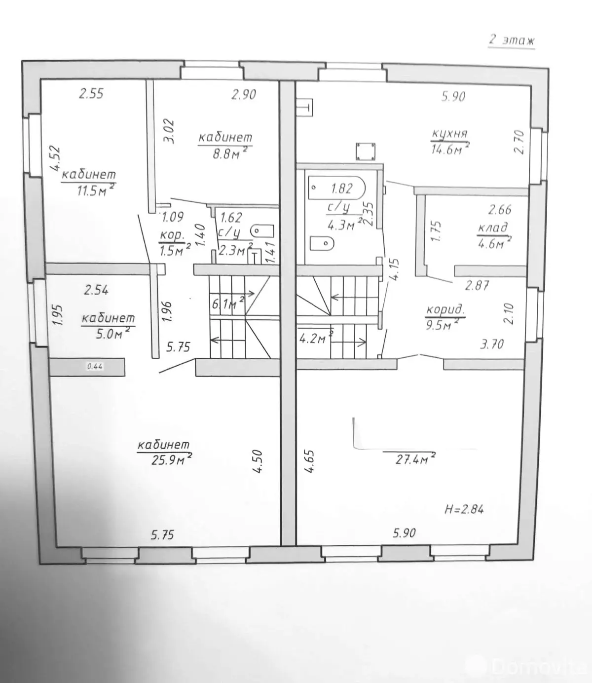
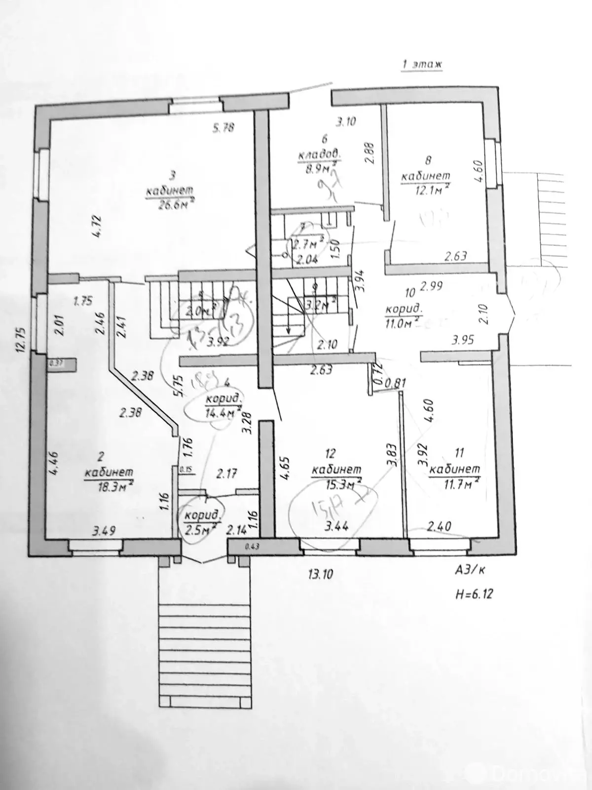
Площадь 477.4 м2
Помещений 19
Этаж 1

Описание

Сдаем в аренду - отдельностоящее административно-хозяйственное здание, площадью 477.4 кв.м. Огороженная территория, видеонаблюдение. Цена 24 р/кв.м. - складские помещения до 250 кв.м., не отапливаемые. Цена 8р/кв.м. Расположение - Гродно, ул. Солнечная 5, в двух остановках от Советской площади. Здание состоит из цокольного этажа, 1 и 2 , мансарды. Сдаем в аренду не меньше чем по одному этажу от 100 кв.м. Помещение с ремонтом: пол – керамическая плитка, стены окрашеные, потолок подвесной. Высота потолков – 2,8 метра. Коммуникации центральные: Электроснабжение 220 и 380 Вт, отопление, водоснабжение (холодное и горячее), канализация – есть. Освещение – естественное есть. Так же есть возможность снять в аренду складские помещения (не отапливаются) на территории здания. Звоните, мы открыты к диалогу.
Код объекта: 16157 Договор с собственником: #4/2А от 17.02.2025 Опубликовано: 03.12.2025 Обновлено: 03.12.2025
Динамика цен за кв. метрДинамика цен
Похожие объекты
Адрес
Комнат
Площадь
Этаж
Цена за м2
Цена
45 м2
4 из 4
9 р. за м2
185 м2
2 из 4
9 р. за м2
1-комнатная
75 м2
1 из 10
26 р. за м2
1-комнатная
32.5 м2
1 из 1
18 р. за м2
10 м2
2 из 2
12 р. за м2

Вы просматривали

10 218 р./мес. 32 р. за м2
Октябрьский р-н
1 470 р./мес. 29 р. за м2
Советский р-н
11 458 р./мес. 24 р. за м2
Октябрьский р-н
Офис, 477.4 м2
Гродно, ул. Солнечная, д. 5
11 458 р./мес.
24 р. за м2
Наталья
Пожалуйста, скажите, что нашли этот объект на Domovita.by
+
Фильтр сохранен