Выберите валюту для сайта:
BYN
Подать БЕСПЛАТНО
Объект в архиве
К результатам поиска

Продажа 2-этажной дачи в Армеец-3 Брестская область, 56900USD, код 171872

33.8 м2
Объект в архиве
Уважаемые пользователи, данное объявление больше не актуально. Поэтому мы убрали все контакты продавца.
Продолжить поиск
Дача
Город Армеец-3
Адрес Армеец-3
  
Общая площадь 33.8 м2
Участок 10.93 соток
Площадь дома 33.8 м2
Этажей 2
Материал стен Кирпич

Описание

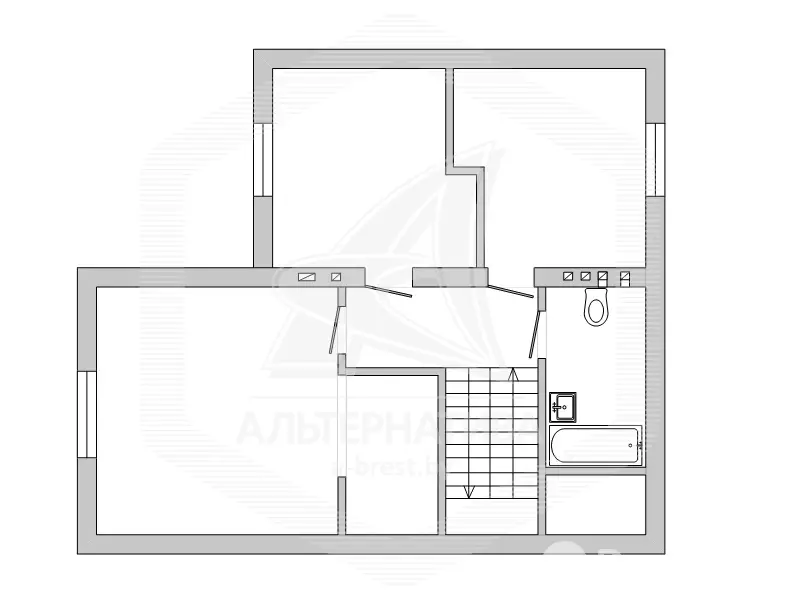
Коробка дачного дома жилого типа в Брестском р-не. 1 этаж + мансарда. Общ.- 33,8 кв.м. Стены: материал - силикатный кирпич и газосиликатный блок. Кровля: металлочерепица. Фундамент: материал - бетон. Коммуникации: газ - централизованный (по улице, взносы не оплачены), водоснабжение - централизованный водопровод (по улице), электричество - централизованное (на участке). Хоз.постройки: садовый домик, теплицы. Участок - 0,1093 га. Лот - 223302. Смотреть подробнее.

Здесь можно подписаться на рассылку новых предложений и снижения цен по ДАЧАМ и УЧАСТКАМ в Брестском регионе прямо Вам в Viber или Telegram ЗАО «АЛЬТЕРНАТИВА Брест». УНП 291427570 Лицензия № 02240/303 от 02.02.2016г. Договор номер 3302/1 от 11.11.2022
Код объекта: 171872 Договор с собственником: 11.11.2022 №3302/1 Опубликовано: 12.11.2022 Обновлено: 27.11.2025
0 / 0 / 0
+
Фильтр сохранен