Выберите валюту для сайта:
BYN
Подать БЕСПЛАТНО
Объект в архиве
К результатам поиска

Купить складское помещение в Байдаках

595.5 м2
Объект в архиве
Уважаемые пользователи, данное объявление больше не актуально. Поэтому мы убрали все контакты продавца.
Продолжить поиск
Склад
Город Байдаки
Адрес Байдаки
Площадь 595.5 м2

Описание

Объект расположен на удобной логистической развязке (для разворота в любом направлении): непосредственно на магистрали Минск - Вильнюс (М7-А3). Территория располагается под Минском, от МКАД 9 км. (метро Каменная горка), регулярно ходит общественный транспорт, непосредственно около объекта остановка.


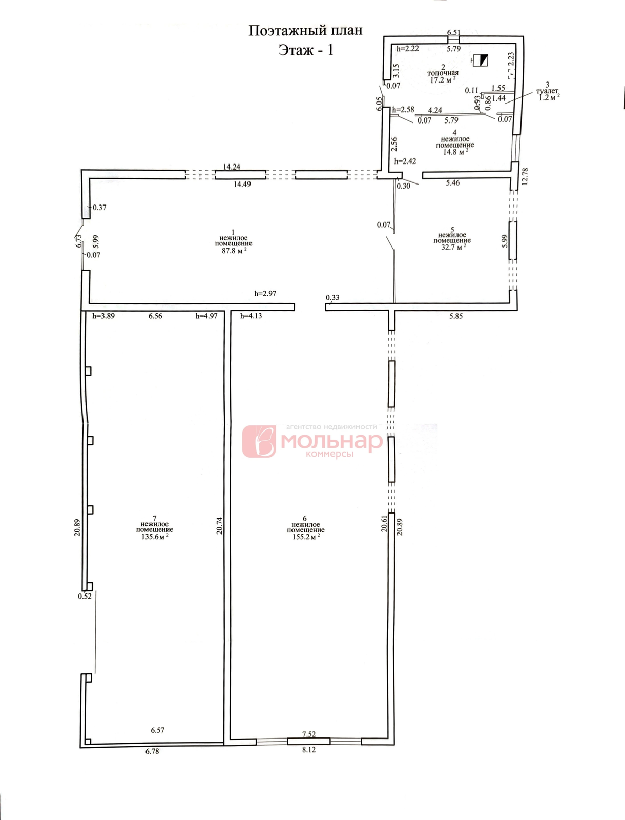
Новое отапливаемое здание для склада площадью 444.5 м2, производства или магазина, высота потолков 4-5 м. Ввод 39 кВт, напряжение 3-х фазное. Офис, гардеробная, санузел, котельная, горячая вода, наливной бес пылевой теплый пол.

Также два пристроенных склада без отопления, площадью 86 м2+65 м2.

Площадь участка 25 соток.

Территория асфальтирована. Всё ограждено высоким забором и посадкой туй, ведётся круглосуточное видеонаблюдение со сдачей под охрану.

На трассу выведен рекламный билборд на ярких светодиодах, для трансляции необходимой тексто-графической информации, которую возможно изменять в режиме реального времени или по расписанию (акции, скидки, бонусы... и другая реклама).

Цена 395.000 дол., НДС 0.

Код объекта: 994649 Договор с собственником: 62/1 Опубликовано: 05.02.2025 Обновлено: 06.02.2025
0 / 0 / 0
Динамика цен за кв. метрДинамика цен
+
Фильтр сохранен