Выберите валюту для сайта:
BYN
Подать БЕСПЛАТНО
Объект в архиве
К результатам поиска

Аренда складского помещения на ул. Советская, д. 1/1 в Красном, код 963686

3280 м2 1 этаж из 1
Объект в архиве
Уважаемые пользователи, данное объявление больше не актуально. Поэтому мы убрали все контакты продавца.
Продолжить поиск
Склад
Город Красное
Адрес ул. Советская, д. 1/1
Год постройки 1987 г.
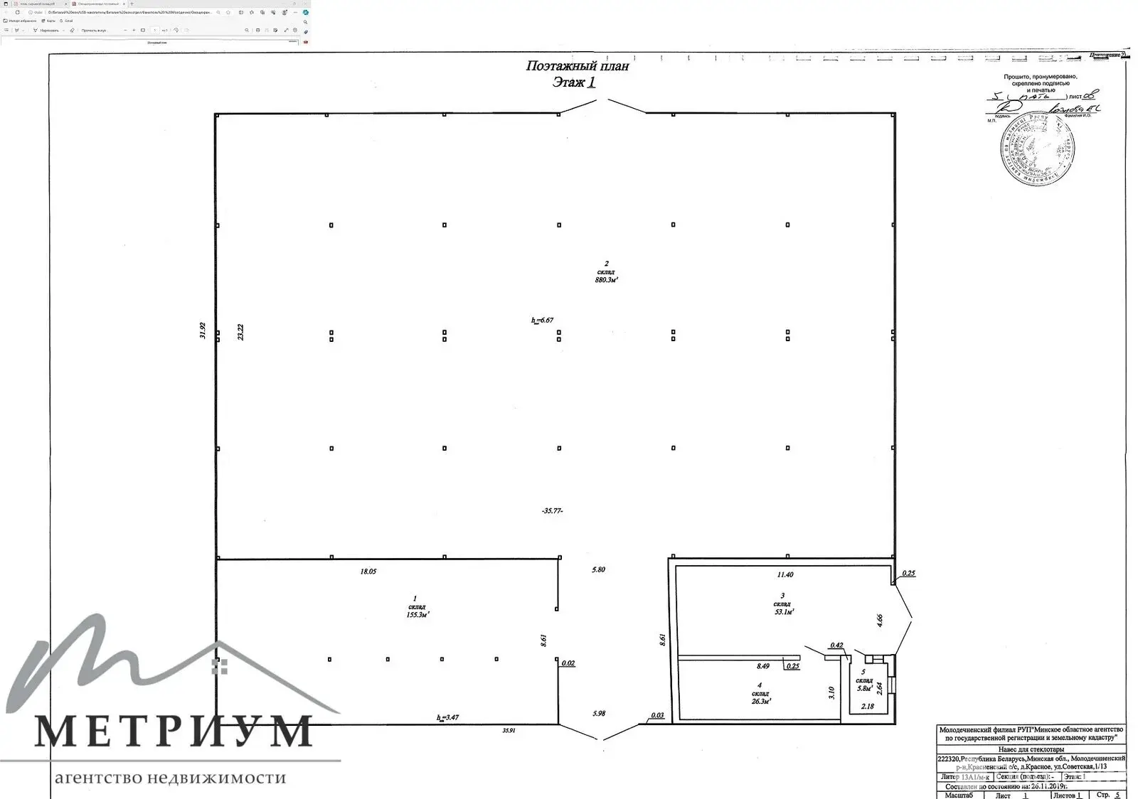
Площадь 3280 м2
Этаж 1

Описание

 

Деревня Красное, Молодечненский района (45 км от МКАД Минска в направлении Молодечно или 15 км от Молодечно)

на базе Красненского консервного комбината.

В наличии все инженерные коммуникации: собственная подстанция, котельная, скважина и т.д. Помещения имеют разные технические характеристики, по запросу предоставим подробную информацию.

Существует возможность подготовки помещения под требования арендатора

Сдаются в аренду:

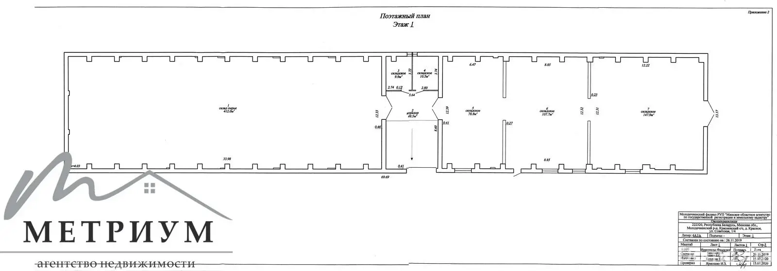
Производственные и складские помещения:

3287.2 кв.м – здание специализированное для производства продуктов питания, включая напитки, и табака (возможна сдача по частям).

Отдельно стоящие складские помещенияарочного типа:

 Арочник - 373,40 кв.м.; Арочник – 382,2 кв.м.; Арочник – 441,0 кв.м.

Склад с постоянным температурным режимом:

815,3 кв.м – наименование овощехранилище (возможна сдача по частям).

Холодный склад:

1120,8 кв.м (возможна сдача по частям).

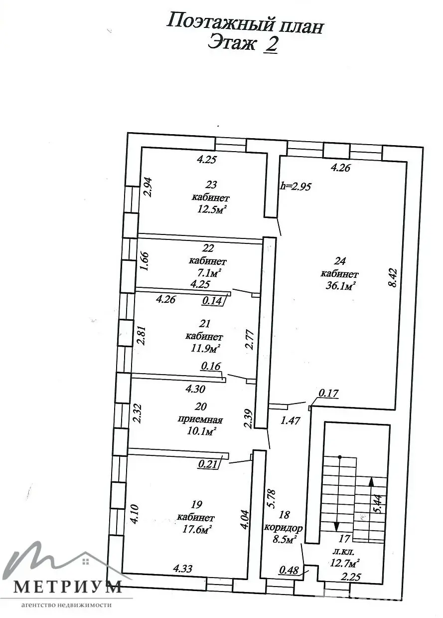
Офис:

Кабинетного типа.

Открытая площадка.

Территория комбината полностью огорожена.

Круглосуточная охрана.

Подъездные пути асфальтированы.

Звоните, ждем вас на просмотр.

Просмотр по предварительной договоренности!

 

Договор № 329/1а от 16.10.2023

ООО Агентство недвижимости «Метриум»

УНП 193581536

Лицензия № 02240/425, выдана Министерством Юстиции РБ 27.08.2021

Код объекта: 963686 Договор с собственником: 329/1а от 2023-10-16 Опубликовано: 12.02.2025 Обновлено: 13.11.2025
0 / 0 / 0
Динамика цен за кв. метрДинамика цен
Похожие объекты
Адрес
Комнат
Площадь
Этаж
Цена за м2
Цена
3287.2 м2
1 из 1
14 р. за м2
3287.2 м2
1 из 1
14 р. за м2
441 м2
1 из 1
10 р. за м2
441 м2
1 из 1
10 р. за м2
800 м2
1 из 1
11 р. за м2
+
Фильтр сохранен