Выберите валюту для сайта:
BYN
Подать БЕСПЛАТНО

Купить земельный участок, 25 соток, Новосады, Брестская область, 13000USD, код 570772

25 соток
Участок
Город Новосады
Адрес Новосады
Участок 25 соток
Водоснабжение Колодец

Описание

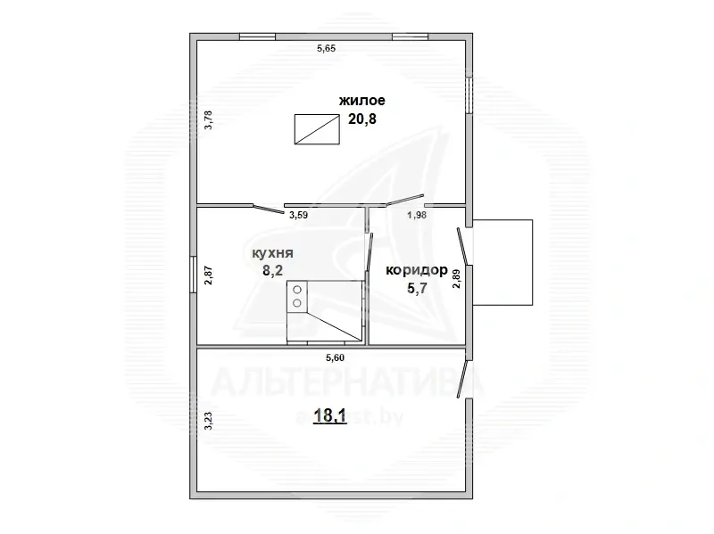
Жилой дом в Малоритском р-не. 1959 г.п. 1 этаж. Общ.СНБ - 54,4 кв.м, общ.- 43,9 кв.м, жил.- 26,1 кв.м, кух.- 6,1 кв.м. 2 комнаты, высота потолка - 2,10 м. Стены: материал - строительный брус; отделка фасада - обрезная доска. Кровля: шифер. Фундамент: ленточный монолитный; материал - бутобетон. Коммуникации: отопление - печь, газ - централизованный (по улице, взносы не оплачены), водоснабжение - колодец, электричество - централизованное. Участок - 0,2500 га. Лот - 251432. Смотреть подробнее.

Здесь можно подписаться на рассылку новых предложений и снижения цен по ДОМАМ и УЧАСТКАМ в Брестском регионе прямо Вам в Viber или Telegram ЗАО «АЛЬТЕРНАТИВА Брест». УНП 291427570 Лицензия № 02240/303 от 02.02.2016г. Договор номер 1432/1 от 29.07.2025
Код объекта: 570772 Договор с собственником: 29.07.2025 №1432/1 Опубликовано: 30.07.2025 Обновлено: 08.03.2026
0 / 0 / 22
Динамика цен за кв. метрДинамика цен
Участок, 25 соток
Новосады
38 375 р.
Сацюк Андрей Владимирович
Пожалуйста, скажите, что нашли этот объект на Domovita.by
+
Фильтр сохранен