Выберите валюту для сайта:
BYN
Подать БЕСПЛАТНО
Объект в архиве
К результатам поиска

Купить помещение под сферу услуг в Песчанке, ул. Шоссейная, д. 1

142.8 м2 1 этаж из 1
Объект в архиве
Уважаемые пользователи, данное объявление больше не актуально. Поэтому мы убрали все контакты продавца.
Продолжить поиск
Сервис
Город Песчанка
Адрес ул. Шоссейная, д. 1
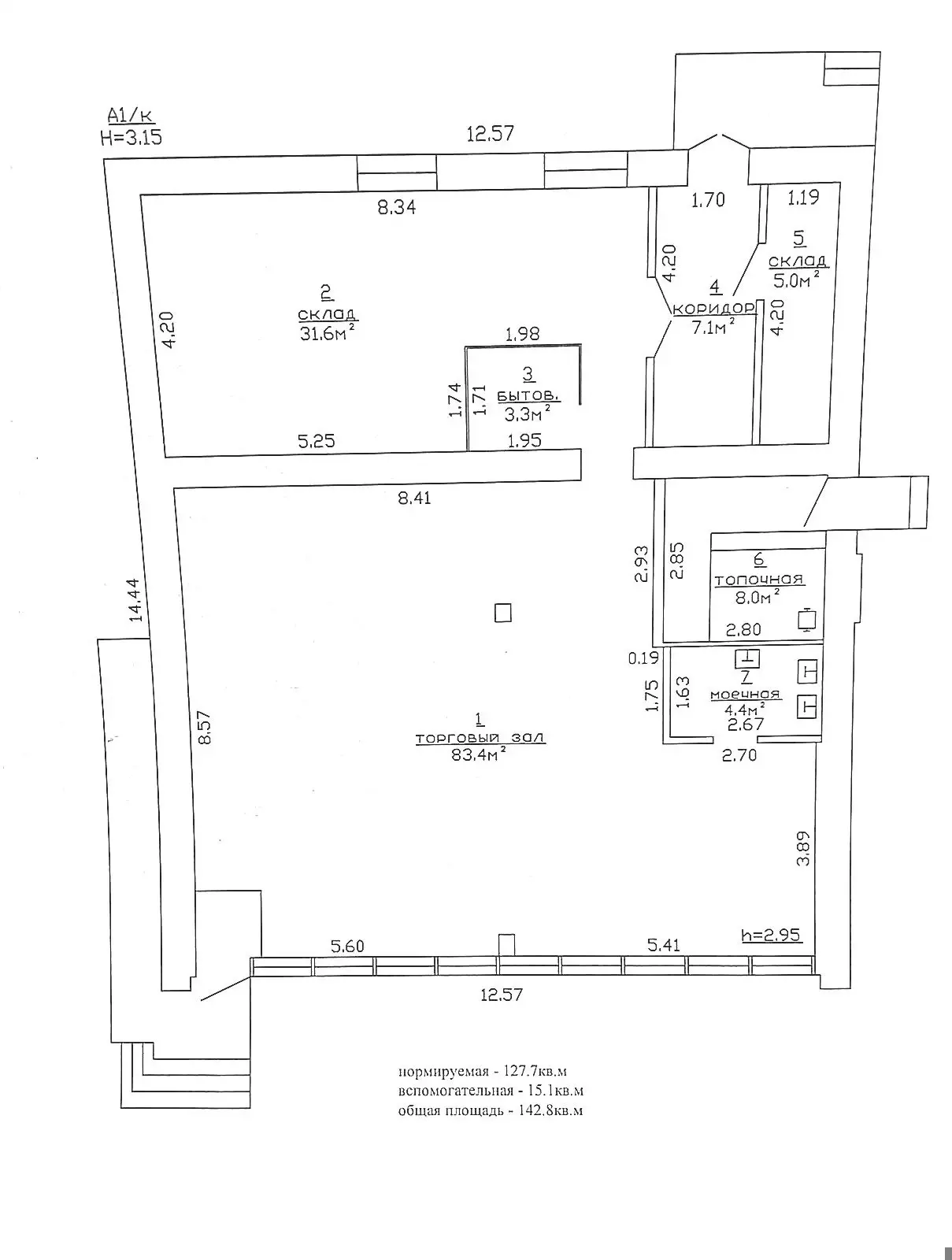
Площадь 142.8 м2
Помещений 2
Этаж 1

Описание

Продается капитальное строение с земельным участком на трассе М6 д. Песчанка ул. Шоссейная 1А, в 8 км от Скиделя со стороны Минска расположенный на участке площадью 9,02 соток (назначение-Земельный участок на праве аренды). Кирпичное строение площадью 142.8 м2, нормируемая 127.7 м2 . Коммуникации :свет, вода скважина, канализация септик, электрическое отопление (есть разрешение 32 кВт) . Удобное месторасположение для бизнеса для Кафе или магазина прямо на трассе М6. Рядом просторный паркинг. Поможем продать Вашу недвижимость для покупки этого дома! За подробной информацией просьба обращаться по телефону и пишите Viber, Telegram.
Код объекта: 4269 Договор с собственником: #195/6 от 03.04.2025 Опубликовано: 03.12.2025 Обновлено: 02.01.2026
0 / 0 / 1
Динамика цен за кв. метрДинамика цен
Похожие объекты
Адрес
Комнат
Площадь
Этаж
Цена за м2
Цена
2-комнатная
142.8 м2
1 из 1
672 р. за м2
+
Фильтр сохранен