Выберите валюту для сайта:
BYN
Подать БЕСПЛАТНО
Объект в архиве
К результатам поиска

Купить офис в Сухиничах, 55900USD, код 9157

132.9 м2 1 этаж из 1
Объект в архиве
Уважаемые пользователи, данное объявление больше не актуально. Поэтому мы убрали все контакты продавца.
Продолжить поиск
Офис
Город Сухиничи
Адрес Сухиничи
Год постройки 1988 г.
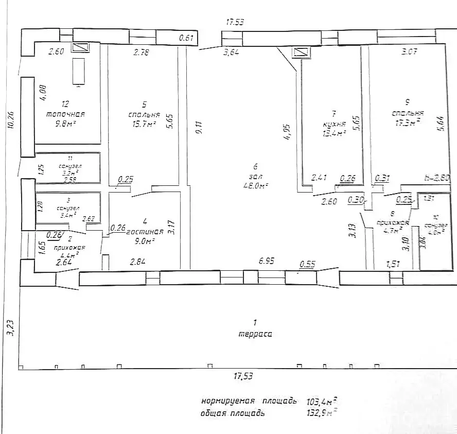
Площадь 132.9 м2
Помещений 4
Этаж 1

Описание

В продаже особенный объект! Дом охотника в живописном месте. Гродненская область, Мостовский район, д. Сухиничи. Площадь земельного участка – 0,3298 га. Общая площадь здания – 132,9 кв. м.: нормируемая – 103,4 кв. м., кухня – 13,4 кв. м. Год постройки – 1988. Вдали от посторонних глаз, среди лесов и полей есть собственный приватный уголок - дом охотника. На территории расположен просторный дом с террасой, навес, искусственный водоем. Добротный дом из кирпича. Кровля – шифер. Окна ПВХ. Водоснабжение - скважина. Местная канализация. Отопление от электрического котла. Есть резервный рабочий твердотопливный котел. Канализация местная. Дом одноэтажный, разделен на два изолированных помещения. В каждом помещении отдельный вход, спальня, санузел. Всего в доме две спальни, большая гостевая комната с камином, три санузла, просторная кухня, топочная. Выполнен современный ремонт. Стены оштукатурены и окрашены. Полы – плитка, ламинат. Санузлы облицованы плиткой. Земельный участок – 32 сотки в долгосрочной аренде. Участок ровный, ухоженный, высажены декоративные кустарники. Обнесен забором, автоматические откатные ворота. Установлено видеонаблюдение с автоматической передачей данных. Уединенное место. Вокруг лесной массив. 50 км от города. Отличное место для ценителей природы.
Код объекта: 9157 Договор с собственником: #445/6 от 08.08.2024 Опубликовано: 11.09.2025 Обновлено: 12.11.2025
Динамика цен за кв. метрДинамика цен
+
Фильтр сохранен