Выберите валюту для сайта:
BYN
Подать БЕСПЛАТНО

Купить помещение под сферу услуг в Девино,

795.1 м2 1 этаж из 1
2 000 000 р.
Сервис
Город Девино
Адрес Девино
Площадь 795.1 м2
Помещений 10
Этаж 1

Описание

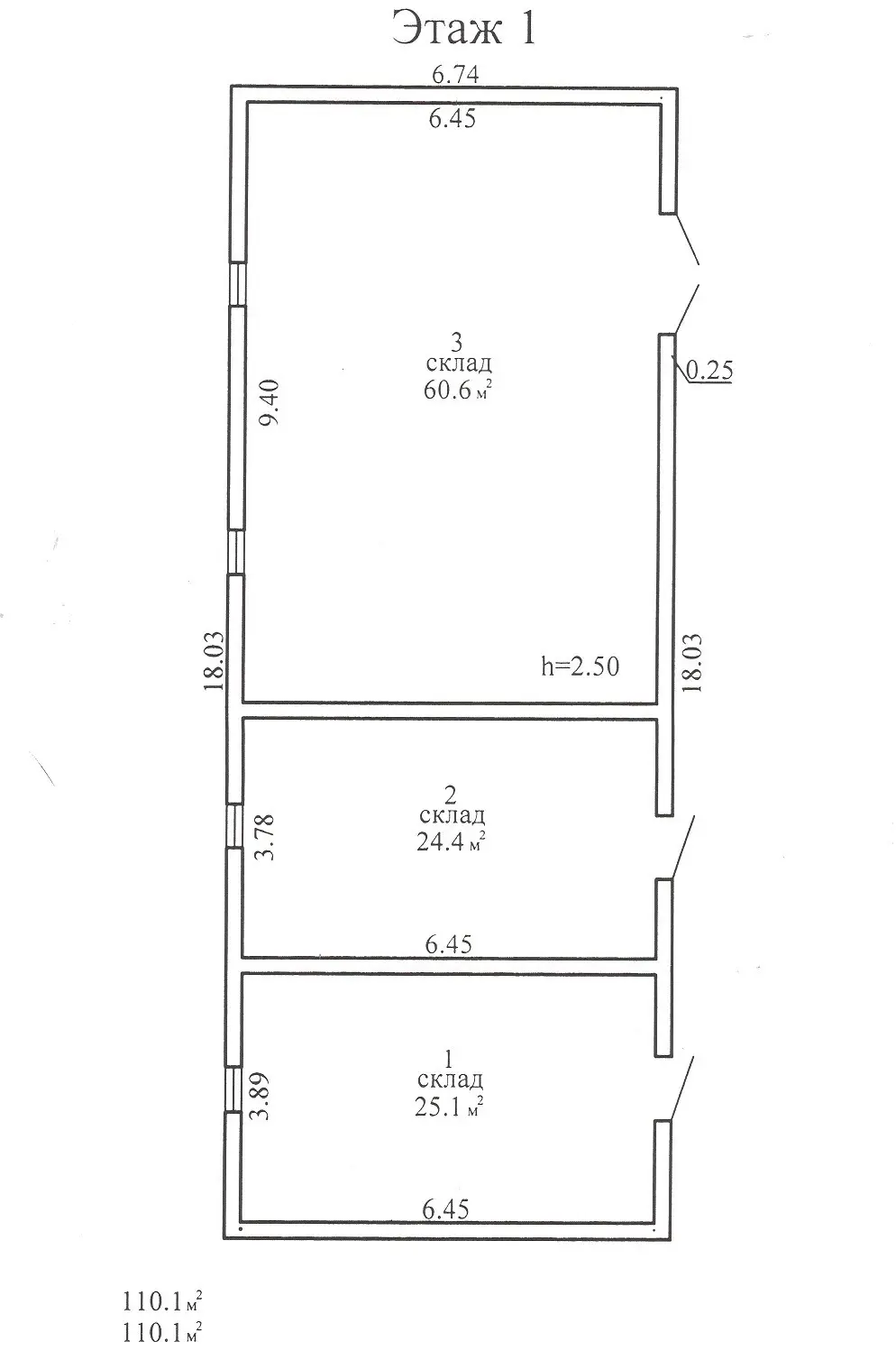
Продаётся готовый бизнес. Действующая база отдыха в Республике Беларусь, Витебской области, Оршанского района. Удобное расположение: до границы с Россией – 56км; до Витебска – 49км, до Орши – 35км. База отдыха находится в лесном массиве на берегу озера Девинское. Невероятно красивая природа: чистейшее озеро и сосновый бор, родниковая вода, благоустроенная территория, зоны барбекю, места для парковки, собственный пляж. пирс и уютные домики для проживания. 1. Земельный участок – 223681100001000029 площадью 1,7977 га плюс прибрежная полоса для обслуживания базы 0,3118га (право постоянного пользования). 2. Капитальное строение (домики для отдыха): Домик №1 – 76,3 м.кв (максимальное размещение 9 человек). Домик №2 – 75 м.кв (9 человек). Домик №3 – 115,8 м.кв. (8-9 человек) в цокольном этаже находится котельная на твердом топливе которая отапливает все базу. Эти домики были полностью реконструированы в 2017 году. В домике №1 и №2 имеются просторная гостиная с полностью оборудованной кухней, спальни (двухместные и трёхместные), санузел с душевой кабиной, веранда с панорамными окнами и мебелью для отдыха. Домик №3 – это 4 спальные комнаты, которые можно сдавать отдельно. Комната №1- двухместная; комната №2 - двухместная, комнату №3 - трёхместная; комната №4 - одноместная. Общие места пользования для всех комнат: коридор, санузел, мини-кухня, веранда с панорамными окнами и мебелью для отдыха. Домик №4 (коттедж) – 171,5 м.кв. (16 человек) новое строительство 2017 год. Коттедж разделен на 2 половины с отдельными входами и выходами в зону барбекю. В каждой половине: 1 этаж - гостиная, барная стойка, обеденная зона, мини-кухня, санузел с душевой кабиной; 2 этаж – 2 спальные комнаты. Все дома и коттедж имеют туалеты с душевой кабиной, бойлеры, телевизоры, кухни полностью упакованы посудой, электрическая плитка. 3. Нежилой фонд: Здание столовой (банкетный зал) – 142,5 м.кв. Банкетный зал готов принять до 70 гостей. В банкетном зале имеется общий банкетный зал: хорошая деревянная мебель (ручная работа), телевизор с диагональю 62 дюйма, караоке, спутниковая антенна, акустическая система; оборудованная кухня: 2 моечные, газовая плита, посуда и столовые приборы; холл с 2-мя санузлами и мягкой мебелью. Беседка (открытая терраса) – 143 м.кв. (с возможностью разместить до 100 гостей, столы и скамейки, освещение). Здание сауны (баня на дровах) – 103,3 м.кв. Общая вместимость: 12 человек. В бане два парных блока с комнатой отдыха и летней верандой. Каждый парной блок имеет отдельный вход и рассчитан на 6 человек. В каждом парном блоке: предбанник, душ, санузел, парная. Комната отдыха – общая для двух парных блоков. К услугам гостей: стол на 12 человек, 2 скамьи, открытая летняя веранда. Склад – 110.1 м.кв (неотапливаемый). 4. Временные сооружения (незарегистрированные): Пирс на пляже. Рыбацкие мостики (2 ед.). Домик для сторожей. Кострище. Детская игровая площадка. Беседки – з шт. Места для парковки машин. Также на базе есть: усилители мобильной связи, WI-FI, терминал для безналичного расчета, 2 катамарана со спасательными жилетами (новые 2019г), бензопила, триммер, мойка высокого давления, 10 мангалов, шампура, решетки, 2 казана на 10л и 20л, бензиновый генератор, водонапорная скважина (вода пригодная для питья, станция обезжелезивания воды), местная канализация, тротуарные дорожки и др. Возможно развивать бизнес по следующим направлениям: семейный отдых, детский отдых, выездные корпоративы, семинары, тренинги, свадьбы, рыбная ловля, охота и т.д. Ещё больше объектов недвижимости в нашем Telegram-канале @urielt_minsk. Телефон, Парковочное место, Интернет, Видеонаблюдение, Закрытая территория
Код объекта: 4344 Договор с собственником: #106/1 от 31.05.2024 Опубликовано: 04.02.2026 Обновлено: 18.03.2026
0 / 0 / 1
Динамика цен за кв. метрДинамика цен

Вы просматривали

Сервис, 795.1 м2
Девино
2 000 000 р.
2 515 р. за м2
Геннадий
Пожалуйста, скажите, что нашли этот объект на Domovita.by
+
Фильтр сохранен