Подать БЕСПЛАТНО

Продажа 1-комнатной квартиры в Гродно, ул. Фолюш, д. 15/199

г. Гродно, ул. Фолюш, 15/199
Показать на карте
Октябрьский район
127 035 р.
Цена за м2: 3 272 р.
Код объекта: 1235594
1 комната
37.1 м2
4 этаж из 4
Обновлено: 26.03.2026
127 035 р.
Цена за м2: 3 272 р.
Предложить свою цену

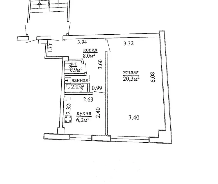
О квартире

Площадь
37.1 м2
общая
20.3 м2
жилая
Отдельных комнат
1 комната
Санузел
совмещенный

О доме

Этаж
4 из 4
Материал стен
Панельный
Год постройки
1980

Описание

Продается однокомнатная квартира в г. Гродно, ул. Фолюш, 15/199. Развитая инфраструктура (магазины, школа, детский сад, минирынок, поликлинника, река Лососянка) . Рядом с домом парковка, детская площадка. 4 этаж 4-хэтажного дома 1980 года постройки, материал стен – панель. Общая площадь 37.1 кв.м., жилая 20.3 кв.м., кухня 6.2 кв.м. Окна – ПВХ. Сан. узел совмещенный, облицован плиткой. Материал полов – ламинат, плитка. За дополнительной информацией просьба обращаться по номеру телефона. Кроме того, здесь Вы можете организовать собственный бизнес как сдача квартиры в аренду. Бесплатное сопровождение для покупателя!!! Работаем с кредитом, жилищным балансом. Оперативный показ и юридическое сопровождение сделки гарантируем. Поможем продать вашу недвижимость для покупки этой. За подробной информацией просьба обращаться по телефону и пишите Viber, Telegram. Возможен торг.
ЕленаАгент
5 лет на сайте
Условия сделки:Чистая продажа
Показать почту
Пожаловаться на объявление
Агентство недвижимости
Юриэлт, филиал г. Гродно

Местоположение

г. Гродно, ул. Фолюш, 15/199
Октябрьский район
Опубликовано: 26.03.2026

Возможно, вам будет интересно

Похожие объекты

На этой улицеВ этом домеВ этом районе
127 035 р.
Цена за м2: 2 899 р.
Октябрьский район, ул. Фолюш
Студия
43.8
43.8
м2
6 этаж из 14
123 930 р.
Цена за м2: 3 190 р.
Октябрьский район, ул. Фолюш
2-комн. кв
38.5
23.1
6.3 м2
5 этаж из 5
169 098 р.
Цена за м2: 4 084 р.
Октябрьский район, ул. Фолюш
1-комн. кв
41.4
33.7
м2
3 этаж из 16
134 093 р.
Цена за м2: 3 724 р.
Октябрьский район, ул. Фолюш
1-комн. кв
36
19.4
6 м2
3 этаж из 4
228 663 р.
Цена за м2: 2 459 р.
Октябрьский район, ул. Соломовой
4-комн. кв
93
55
м2
6 этаж из 10
147 361 р.
Цена за м2: 2 905 р.
Октябрьский район, ул. Поповича
4-комн. кв
58.3
42.8
6.2 м2
4 этаж из 5
127 035 р.
Цена за м2: 2 899 р.
Октябрьский район, ул. Фолюш
Студия
43.8
43.8
м2
6 этаж из 14