О квартире
Площадь
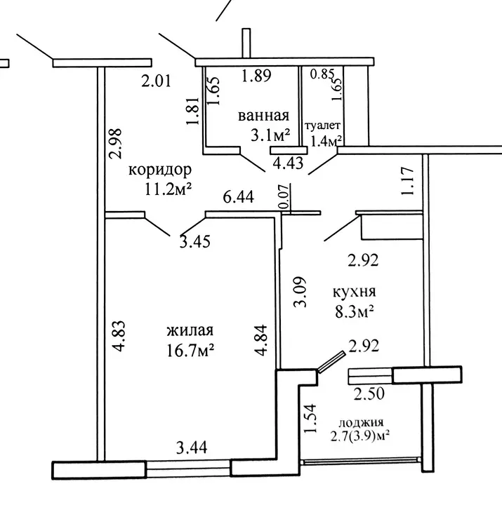
43.4 м2
общая
16.7 м2
жилая
8.3 м2
кухня
Отдельных комнат
1 комната
Санузел
раздельный
Балкон
Лоджия
О доме
Этаж
3 из 9
Материал стен
Панельный
Год постройки
2015
Описание
Татьяна — Агент
5 лет на сайте
Условия сделки:Чистая продажа
Показать почту
Пожаловаться на объявление
Агентство недвижимости
Юриэлт, филиал г. Гродно
УНП: 101214439 Лицензия: от 17.02.2005 № 40 МЮ РБ
Договор №: #604/17 от 26.11.2025



























