Подать БЕСПЛАТНО

Продажа 2-комнатной квартиры в Гродно, ул. Фолюш, д. 15/185

г. Гродно, ул. Фолюш, 15/185
Показать на карте
Октябрьский район
123 980 р.
Цена за м2: 2 875 р.
Код объекта: 1181421
2 комнаты
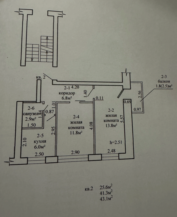
43.1 м2
1 этаж из 2
Обновлено: 08.07.2025
123 980 р.
Цена за м2: 2 875 р.
Предложить свою цену

О квартире

Площадь
43.1 м2
общая
25.6 м2
жилая
6 м2
кухня
Отдельных комнат
2 комнаты
Санузел
Совмещенный
Балкон
Балкон
Тип ремонта
Хороший

О доме

Этаж
1 из 2
Материал стен
Кирпичный

Описание

Продается 2-комнатная квартира в кирпичном доме. Общая площадь квартиры 43,1 кв. м, жилая площадь 25,6 кв. м, кухня 6,0 кв. м. Квартира расположена на 1 этаже 2-этажного дома. В квартире сделан косметический ремонт, пол - ламинат, натяжной потолок. установлены стеклопакеты, застекленный балкон. Санузел совместный,  облицован плиткой. Квартира очень теплая и солнечная. Есть подвал. Во дворе дома достаточно парковочных мест, вокруг много зеленых насаждений.

В шаговой доступности находятся продуктовые магазины, аптека, банк. Рядом расположен живописный парк с детскими и спортивными площадками.

Прямая продажа. Цена:долларов...

Контактное лицо: Мария.

Дополнительно: В квартире остается встроенная кухня, шкаф-купе в прихожей, возможно спальня.

МарияСобственник
8 месяцев на сайте
Условия сделки:Чистая продажа
Показать почту
Пожаловаться на объявление

Местоположение

г. Гродно, ул. Фолюш, 15/185
Октябрьский район
Опубликовано: 08.07.2025

Возможно, вам будет интересно

Похожие объекты

На этой улицеВ этом районе
132 836 р.
Цена за м2: 3 032 р.
Октябрьский район, ул. Фолюш
Студия
43.8
43.8
м2
6 этаж из 14
294 009 р.
Цена за м2: 3 616 р.
Октябрьский район, ул. Фолюш
3-комн. кв
81.3
44.7
11.8 м2
7 этаж из 7
197 482 р.
Цена за м2: 2 724 р.
Октябрьский район, ул. Фолюш
3-комн. кв
72.5
43
8.7 м2
2 этаж из 9
239 104 р.
Цена за м2: 2 571 р.
Октябрьский район, ул. Соломовой
4-комн. кв
93
55
м2
6 этаж из 10
154 089 р.
Цена за м2: 3 038 р.
Октябрьский район, ул. Поповича
4-комн. кв
58.3
42.8
6.2 м2
4 этаж из 5
132 836 р.
Цена за м2: 3 032 р.
Октябрьский район, ул. Фолюш
Студия
43.8
43.8
м2
6 этаж из 14