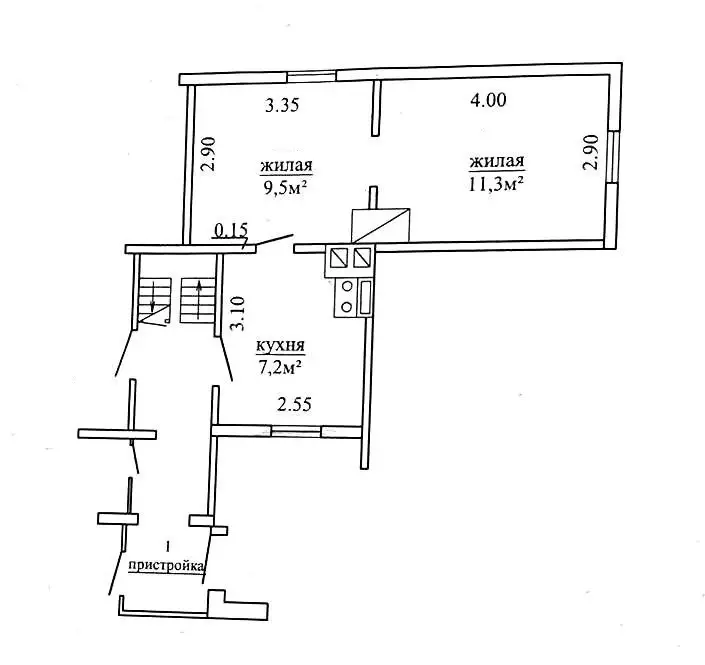
О квартире
Площадь
28 м2
общая
20.8 м2
жилая
7.2 м2
кухня
О доме
Этаж
1 из 1
Материал стен
Бревенчатый
Описание
Анастасия — Агент
5 лет на сайте
Условия сделки:Чистая продажа
Показать почту
Пожаловаться на объявление
Агентство недвижимости
Юриэлт, филиал г. Гродно
УНП: 101214439 Лицензия: от 17.02.2005 № 40 МЮ РБ
Договор №: #35/17 от 16.01.2026


























