Подать БЕСПЛАТНО

Продажа 3-комнатной квартиры в Гродно, ул. Окульная, д. 2А

г. Гродно, ул. Окульная,
Показать на карте
Октябрьский район
150 547 р.
Цена за м2: 2 517 р.
Код объекта: 1233892
3 комнаты
59.8 м2
1 этаж из 1
Обновлено: 17.03.2026
150 547 р.
Цена за м2: 2 517 р.
Предложить свою цену

О квартире

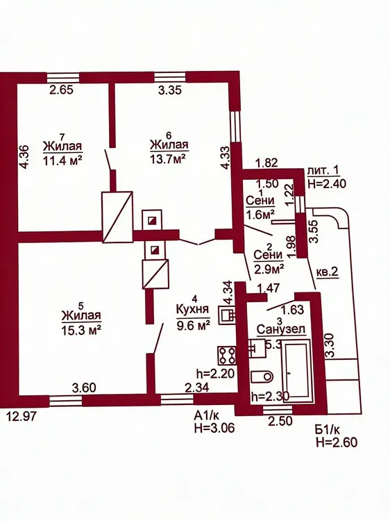
Площадь
59.8 м2
общая
40.4 м2
жилая
9.6 м2
кухня

О доме

Этаж
1 из 1
Материал стен
Бревенчатый
Год постройки
1960

Описание

Продается 3-комнатная квартира с земельным участком в жилом доме в г. Гродно, ул. Окульная, д.2а с ремонтом. Хорошее месторасположение, развитая инфраструктура, в шаговой доступности продовольственные магазины, остановки общественного транспорта, недалеко школа, детский сад, до центра города 5 минут, доброжелательные соседи. Дом 1960 года постройки, в 2013 была реконструкция, деревянный, крыша шифер, окна ПВХ, отопление газовое, электричество, вода центральная, канализация местная. Общая площадь 59.8 кв.м., жилая – 40.4 кв.м., кухня 9.6 кв.м. Окна – ПВХ. Материал полов – ламинат. Материал стен - обои. Участок 2,32 сотоки. За дополнительной информацией просьба обращаться по номеру телефона. Кроме того, здесь Вы можете организовать собственный бизнес как сдача квартиры в аренду. Бесплатное сопровождение сделки для покупателя! Работаем с кредитом, семейным капиталом, жилищным балансом. Поможем продать вашу недвижимость для покупки этой. За подробной информацией просьба обращаться по телефону и пишите Viber, Telegram. Возможен торг.
ЕленаАгент
5 лет на сайте
Условия сделки:Чистая продажа
Показать почту
Пожаловаться на объявление
Агентство недвижимости
Юриэлт, филиал г. Гродно

Местоположение

г. Гродно, ул. Окульная,
Октябрьский район
Опубликовано: 17.03.2026

Возможно, вам будет интересно

Похожие объекты

В этом районе
239 104 р.
Цена за м2: 2 571 р.
Октябрьский район, ул. Соломовой
4-комн. кв
93
55
м2
6 этаж из 10
154 089 р.
Цена за м2: 3 038 р.
Октябрьский район, ул. Поповича
4-комн. кв
58.3
42.8
6.2 м2
4 этаж из 5
132 836 р.
Цена за м2: 3 032 р.
Октябрьский район, ул. Фолюш
Студия
43.8
43.8
м2
6 этаж из 14