Подать БЕСПЛАТНО

Продажа 3-комнатной квартиры в Гродно, ул. Соломовой, д. 104

г. Гродно, ул. Соломовой, 104
Показать на карте
Октябрьский район
191 874 р.
Цена за м2: 2 633 р.
Код объекта: 1225427
3 комнаты
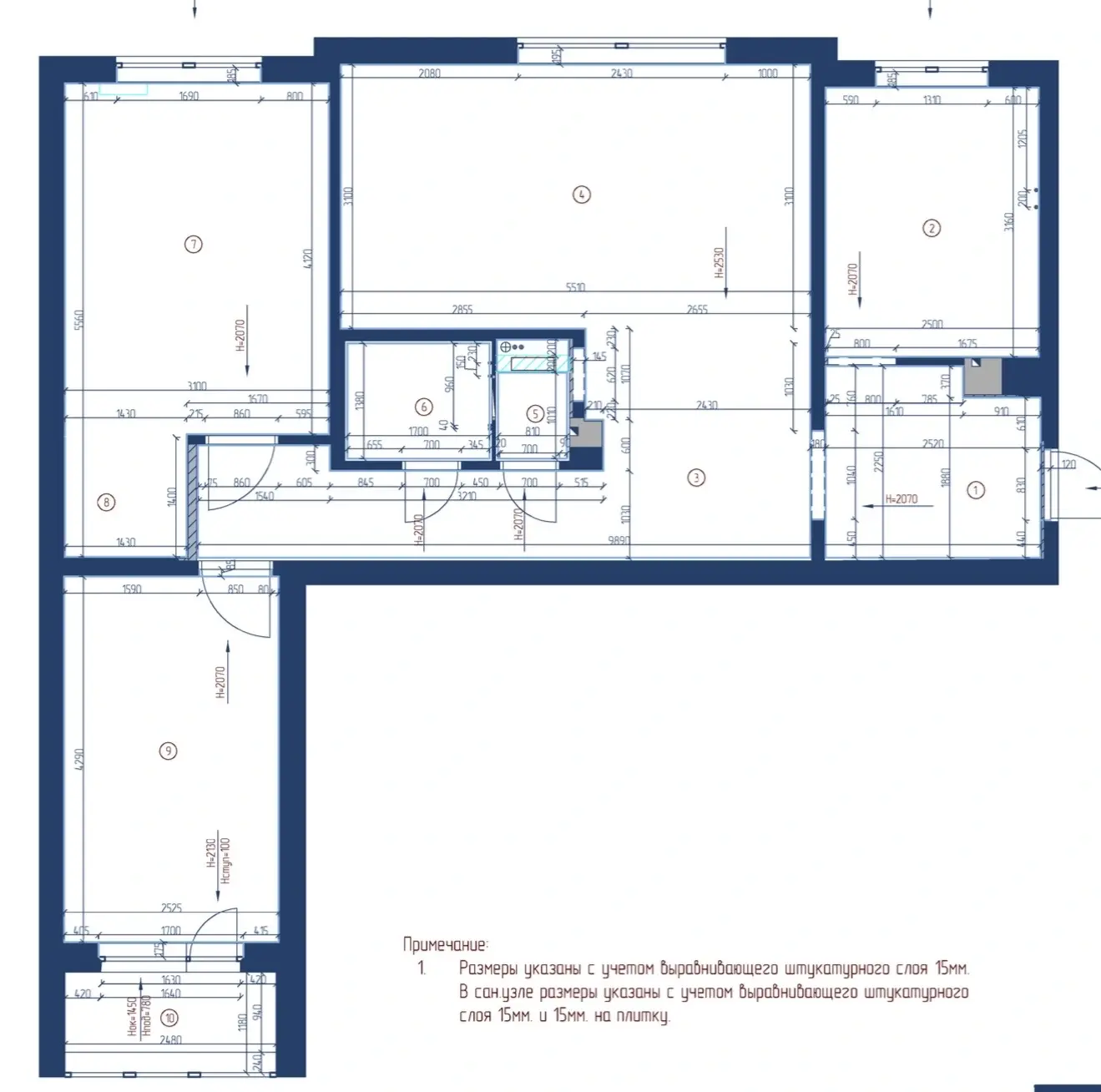
72.8 м2
6 этаж из 9
Обновлено: 27.01.2026
191 874 р.
Цена за м2: 2 633 р.
Предложить свою цену

О квартире

Площадь
72.8 м2
общая
42.9 м2
жилая
8.9 м2
кухня
Отдельных комнат
3 комнаты
Санузел
Раздельный
Балкон
Балкон
Тип ремонта
Без отделки

О доме

Этаж
6 из 9
Материал стен
Панельный
Год постройки
1984

Описание

Продаётся просторная трехкомнатная квартира по адресу ул. Соломовой 104. Квартира расположена на шестом этаже девятиэтажного дома. Общая площадь квартиры 72,8 м.кв., в том числе жилая 42,9 м.кв.

В квартире проведен полный демонтаж полов, стен, плитки, оштукатурены стены и потолок. Сделана стяжка пола, разведена проводка с возможностью подключения индукции. В квартире установлены стеклопакеты. Все работы проведены согласно дизайнерскому проекту, который прилагается при продаже квартиры.

Квартира теплая. Чистый подъезд, хорошие соседи. Дом расположен в экологически чистом районе, с развитой инфраструктурой. В непосредственной близости продуктовые магазины, аптека, детские сады, школы. В 2 минутах ходьбы остановка общественного транспорта, с которой можно добраться в любую точку города. Есть места для парковки.

ЕленаСобственник
месяц на сайте
Условия сделки:Чистая продажа
Пожаловаться на объявление

Местоположение

г. Гродно, ул. Соломовой, 104
Октябрьский район
Опубликовано: 27.01.2026

Возможно, вам будет интересно

Похожие объекты

На этой улицеВ этом домеВ этом районе
239 104 р.
Цена за м2: 2 571 р.
Октябрьский район, ул. Соломовой
4-комн. кв
93
55
м2
6 этаж из 10
122 799 р.
Цена за м2: 2 542 р.
Октябрьский район, ул. Соломовой
2-комн. кв
49.8
34.4
м2
5 этаж из 5
233 200 р.
Цена за м2: 3 313 р.
Октябрьский район, ул. Соломовой
3-комн. кв
70.4
41.9
8.8 м2
4 этаж из 5
196 301 р.
Цена за м2: 2 656 р.
Октябрьский район, ул. Соломовой
3-комн. кв
72.8
43
9 м2
6 этаж из 9
239 104 р.
Цена за м2: 2 571 р.
Октябрьский район, ул. Соломовой
4-комн. кв
93
55
м2
6 этаж из 10
154 089 р.
Цена за м2: 3 038 р.
Октябрьский район, ул. Поповича
4-комн. кв
58.3
42.8
6.2 м2
4 этаж из 5
132 836 р.
Цена за м2: 3 032 р.
Октябрьский район, ул. Фолюш
Студия
43.8
43.8
м2
6 этаж из 14