Подать БЕСПЛАТНО

Купить 4-комнатную квартиру в Гродно, ул. Воинов-Интернационалистов, д. 12

г. Гродно, ул. Воинов-Интернационалистов, 12
Показать на карте
Октябрьский район
289 664 р.
Цена за м2: 2 956 р.
Код объекта: 1231787
4 комнаты
98 м2
10 этаж из 16
Обновлено: 26.02.2026
289 664 р.
Цена за м2: 2 956 р.
Предложить свою цену

О квартире

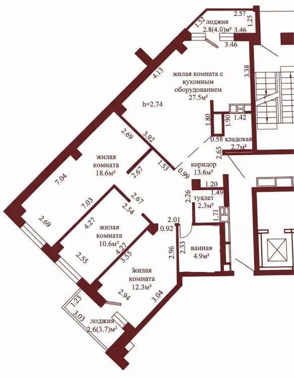
Площадь
98 м2
общая
69.1 м2
жилая
27.5 м2
кухня
Санузел
раздельный
Балкон
Лоджия

О доме

Этаж
10 из 16
Материал стен
Монолитный
Год постройки
2023

Описание

Просторная, светлая четырехкомнатная квартира c в центре г. Гродно, ул. Воинов-Интернационалистов, 12 (дом ЖСПК). Дом отличается удачным расположением, удобные выезды, хорошая транспортная развязка, современные лифты: грузовой и пассажирский. Установлено видеонаблюдение. Дом располагается далеко от дороги, что обеспечивает тишину. Развитая инфраструктура (ТЦ «Корона», ТЦ «Материк», Развлекательный центр «Галактика», фитнес зал). Недалеко ТЦ «Тринити». Рядом с домом удобная большая парковка, автосервис, автомойка, детская площадка, детская амбулатория в доме, спортивный стадион. Лесопарк, р. Неман. Исторический центр города в шаговой доступности: старый и новый замок, собор Святого Франциска Ксаверия, костёл и монастырь бернардинцев, Советская площадь, кафе и рестораны, Гродненский областной драматический театр. 10 этаж 16-тиэтажного дома 2023 года постройки, материал стен - монолит. Общая площадь 98 кв.м., жилая 69.1кв.м., кухня совмещенная с гостинной 27.5 кв.м. Окна – ПВХ. Сан. узел раздельный. Имеются две просторные лоджии, застеклены. За дополнительной информацией просьба обращаться по номеру телефона. Бесплатное сопровождение для покупателя!!! Оперативный показ и юридическое сопровождение сделки гарантируем. Поможем продать вашу недвижимость для покупки этой. Работаем с привлечением кредита, жилищного баланса, семейного капитала. За подробной информацией просьба обращаться по телефону и пишите Viber, Telegram, WhatsApp.
ЕленаАгент
5 лет на сайте
Условия сделки:Чистая продажа
Показать почту
Пожаловаться на объявление
Агентство недвижимости
Юриэлт, филиал г. Гродно

Местоположение

г. Гродно, ул. Воинов-Интернационалистов, 12
Октябрьский район
Опубликовано: 26.02.2026

Возможно, вам будет интересно

Похожие объекты

На этой улицеВ этом домеВ этом районе
365 738 р.
Цена за м2: 4 755 р.
Октябрьский район, ул. Воинов-Интернационалистов
3-комн. кв
76.9
54.1
м2
10 этаж из 16
233 779 р.
Цена за м2: 5 994 р.
Октябрьский район, ул. Воинов-Интернационалистов
1-комн. кв
39
29.6
м2
1 этаж из 16
240 000 р.
Цена за м2: 3 927 р.
Октябрьский район, ул. Воинов-Интернационалистов
2-комн. кв
61.1
31.5
10.6 м2
6 этаж из 10
365 738 р.
Цена за м2: 4 755 р.
Октябрьский район, ул. Воинов-Интернационалистов
3-комн. кв
76.9
54.1
м2
10 этаж из 16
365 738 р.
Цена за м2: 4 755 р.
Октябрьский район, ул. Воинов-Интернационалистов
3-комн. кв
76.9
54.1
м2
10 этаж из 16
275 035 р.
Цена за м2: 3 438 р.
Октябрьский район, ул. Лидская
3-комн. кв
80
74
м2
6 этаж из 7
166 484 р.
Цена за м2: 3 730 р.
Октябрьский район, ул. Захарова
2-комн. кв
45.5
26.1
м2
4 этаж из 9