Выберите валюту для сайта:
BYN
Подать БЕСПЛАТНО

Снять офис на ул. Аульская, д. 36 в Гродно, 880BYN, код 16566

220 м2 1 этаж из 2 Октябрьский район / Скидельская
880 р./мес.
Офис
Город Гродно
Район Октябрьский район
Микрорайон Скидельская
Адрес ул. Аульская, д. 36
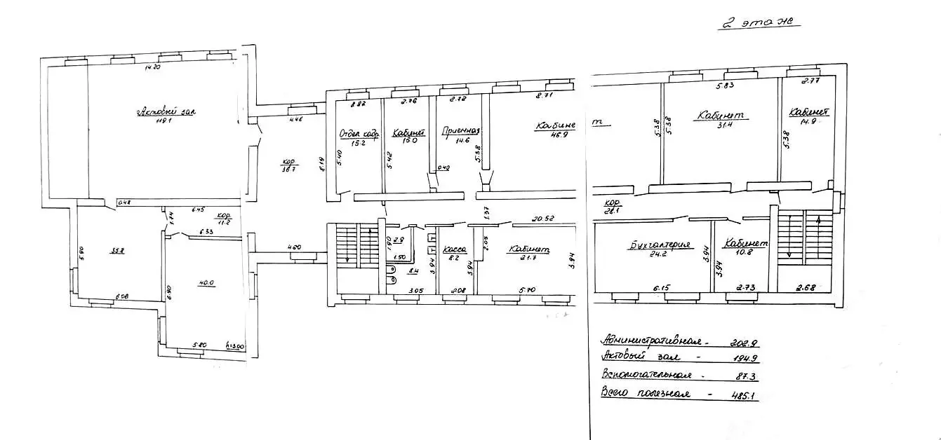
Площадь 220 м2
Помещений 21
Этаж 1

Описание

Сдается в аренду двухэтажное капитальное строение с земельным участком 0,2757 га. в г. Гродно ул. Аульская д.36. Общая площадь по СНБ 970 м2, Коммуникации: твердотопливный котел, водопровод и канализация, электричество, интернет можно подвести, Высота потолка 5 метров. На первом этаже имеется рампа. Хороший подъезд к зданию, парковочные места. Место отлично подойдет для Вашего бизнеса ( мебельное производство, швейное, склады и т.д..) Остановка общественного транспорта в 100 метрах от здания. Рассматриваем варианты сдачи в аренду по частям. За подробной информацией просьба обращаться по телефону + и пишите Viber, Telegram. Возможен торг.
Код объекта: 16566 Договор с собственником: #20/2А от 14.05.2025 Опубликовано: 26.02.2026 Обновлено: 26.02.2026
Динамика цен за кв. метрДинамика цен

Вы просматривали

880 р./мес. 4 р. за м2
Октябрьский р-н
Офис, 220 м2
Гродно, ул. Аульская, д. 36
880 р./мес.
4 р. за м2
Наталья
Пожалуйста, скажите, что нашли этот объект на Domovita.by
+
Фильтр сохранен