Выберите валюту для сайта:
BYN
Подать БЕСПЛАТНО

Аренда офиса на ул. Титова, д. 30А в Гродно, 480EUR, код 12241

60 м2 1 этаж из 3 Октябрьский район / Фолюш
1 899 р./мес.
1 626 р./мес.
Офис
Город Гродно
Район Октябрьский район
Микрорайон Фолюш
Адрес ул. Титова, д. 30А
Площадь 60 м2
Помещений 10
Этаж 1
Удобства
Телефон
Круглосуточный доступ
Парковка

Описание

В долгосрочную Аренду предлагаются коммерческие помещения в 3ех этажном многофункциональном здании 2024 г. постройки по ул. Титова, 30А.

Коммуникации – на каждом этаже есть водопровод с горячей водой, канализация, отопление, санузел, электричество.

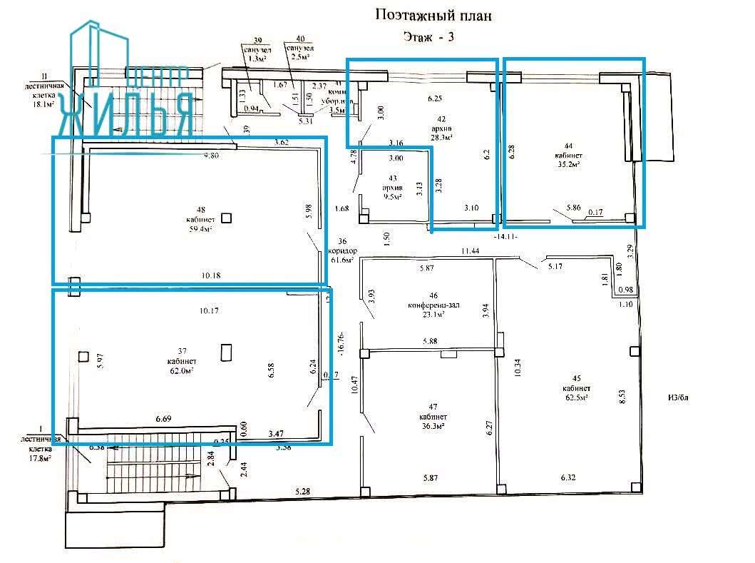
На ВТОРОМ и ТРЕТЬЕМ этажах в аренду предлагаются административные/торговые/офисные помещения от 35 м2 до 77,4 м2.

Возможна аренда как отдельного кабинета, так и целого этажа. Много помещений имеют остекление в пол.

Помещение 42 (площадью 28,3 м2), расположенное на 3м этаже, может быть арендовано под объект сферы услуг, в том числе салон красоты, парикмахерскую или массажный кабинет (в нем есть водопровод и канализация).

Стоимость аренды второго этажа- 9 евро/м2, третьего этажа – 8 евро/м2.

Выгодное месторасположение рядом с центром города с собственной парковкой и хорошая транспортная доступность обеспечат большой поток посетителей.

Код объекта: 12241 Договор с собственником: 9/1А от 01/06/2024 Опубликовано: 10.06.2024 Обновлено: 09.09.2025
Динамика цен за кв. метрДинамика цен
Похожие объекты
Адрес
Комнат
Площадь
Этаж
Цена за м2
Цена
45 м2
4 из 4
9 р. за м2
185 м2
2 из 4
9 р. за м2
1-комнатная
75 м2
1 из 10
26 р. за м2
1-комнатная
32.5 м2
1 из 1
18 р. за м2
10 м2
2 из 2
12 р. за м2

Вы просматривали

1 626 р./мес. 27 р. за м2
Октябрьский р-н
Офис, 60 м2
Гродно, ул. Титова, д. 30А
1 626 р./мес.
27 р. за м2
Пожалуйста, скажите, что нашли этот объект на Domovita.by
+
Фильтр сохранен