Выберите валюту для сайта:
BYN
Подать БЕСПЛАТНО

Продажа комнаты в Гродно, ул. Соломовой, д. 88, цена 18500 USD, код 7423

Октябрьский район 73.2 м2 3 этаж
1 245 р./м2
Дом
Город Гродно
Район Октябрьский район
Микрорайон Фолюш
Адрес ул. Соломовой, д. 88
Этажность 9
Материал стен Панельный
Год постройки 1980
Квартира
Общая площадь 73.2 м2
Продаваемая площадь 43 м2
Кухня 9 м2
Комнат 3
Комнат раздельных 1
Этаж 3
Условия продажи Чистая продажа

Описание

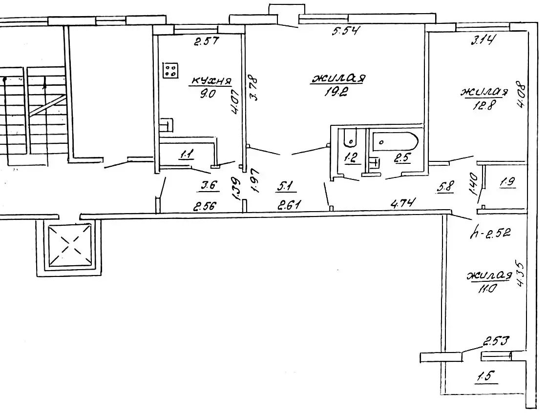
В продаже ½ доля в трехкомнатной квартире улица Ольги Соломовой,88 3 этаж из 9. Год постройки – 1980. Материал стен – железобетонная панель. Общая площадь – 73,2 кв. м., жилая – 43 кв. м., кухня – 9 кв. м. Квартира принадлежит двум собственникам – по одной второй равной доли у каждого. Комнаты не выделены. Квартира в простом жилом состоянии, без современного ремонта. Чешская планировка с тремя изолированными комнатами. Есть две кладовые. Стены оклеены обоями, потолки окрашены, полы ДВП. Двустворчатые деревянные окна. Установлены счетчики на воду. Входная дверь металлическая. Дом находится в отличном месте. Экологически чистый зеленый район. В непосредственной близости находятся разнообразные магазины, школа, детские сады. Развитая транспортная доступность во все направления города.
Код объекта: 7423 Договор с собственником: #601/17 от 26.11.2025 Опубликовано: 28.11.2025 Обновлено: 28.11.2025
0 / 3 / 3
Динамика цен за кв. метрДинамика цен

Вы просматривали

53 570 р. 1 245 р. за м2
Октябрьский р-н
Комната, 43 м2
Гродно, ул. Соломовой, д. 88
53 570 р.
1 245 р. за м2
Людмила
Пожалуйста, скажите, что нашли этот объект на Domovita.by
+
Фильтр сохранен