Выберите валюту для сайта:
BYN
Подать БЕСПЛАТНО

Снять торговую точку на ул. Франтишка Богушевича, д. 4 в Гродно, 496USD, код 967371

82.6 м2 1 этаж из 10 Октябрьский район / Ольшанка
1 464 р./мес.
Торговый объект
Город Гродно
Район Октябрьский район
Микрорайон Ольшанка
Адрес ул. Франтишка Богушевича, д. 4
Год постройки 2020 г.
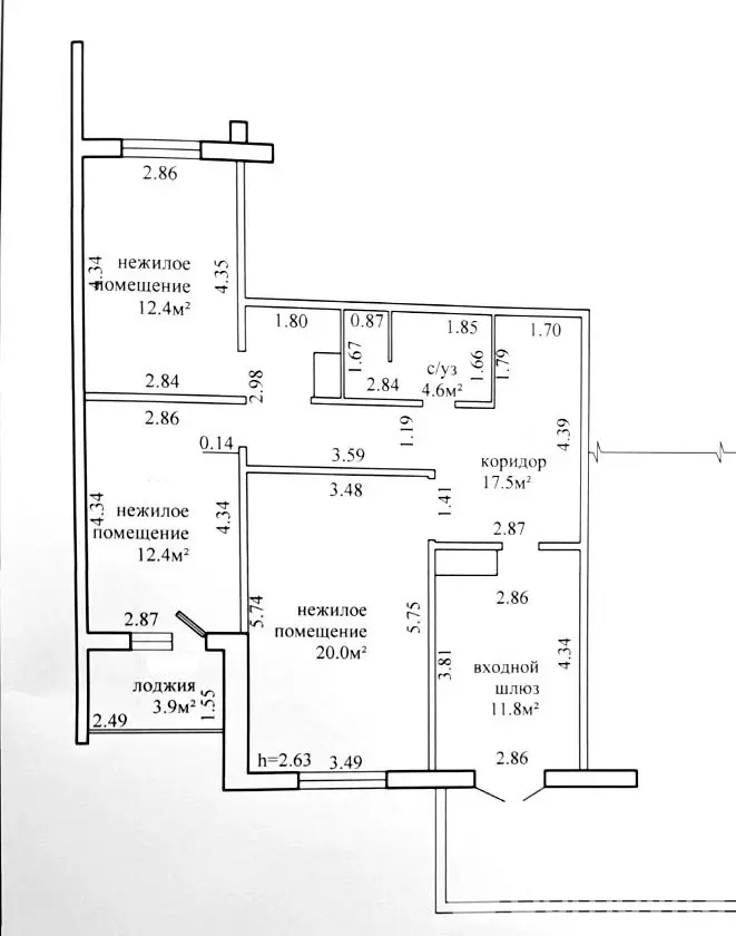
Площадь 82.6 м2
Этаж 1

Описание

Сдаётся в аренду изолированное помещения по ул. Ф. Богушевича д.4 общей площадью 82.6кв.м. на первом этаже жилого дома . Ремонт: пол – плитка, стены не оштукатурены. Вода проведена в одну из комнат. Готовили помещение для салона красоты.... По вопросам ремонта помещения будем разговаривать ... Доступ 24/7. Парковка у входа в здания и во дворе . Отлично подойдёт для офиса, Beauty сферы.....До центра города 15 минут пути на автомобиле. По всем интересующим вас вопросам обращайтесь по номеру и Viber, Telegram, WhatsApp
Код объекта: 967371 Договор с собственником: #46/2А от 30.10.2024 Опубликовано: 15.07.2025 Обновлено: 17.03.2026
0 / 0 / 9
Динамика цен за кв. метрДинамика цен

Вы просматривали

Торговый объект, 82.6 м2
Гродно, ул. Франтишка Богушевича, д. 4
1 464 р./мес.
18 р. за м2
Наталья
Пожалуйста, скажите, что нашли этот объект на Domovita.by
+
Фильтр сохранен