Выберите валюту для сайта:
BYN
Подать БЕСПЛАТНО
Объект в архиве
К результатам поиска

Купить земельный участок, 25 соток, Ивахновичи, Брестская область, 10000USD, код 571257

25 соток
Объект в архиве
Уважаемые пользователи, данное объявление больше не актуально. Поэтому мы убрали все контакты продавца.
Продолжить поиск
Участок
Адрес Ивахновичи
Участок 25 соток
Водоснабжение Колодец

Описание

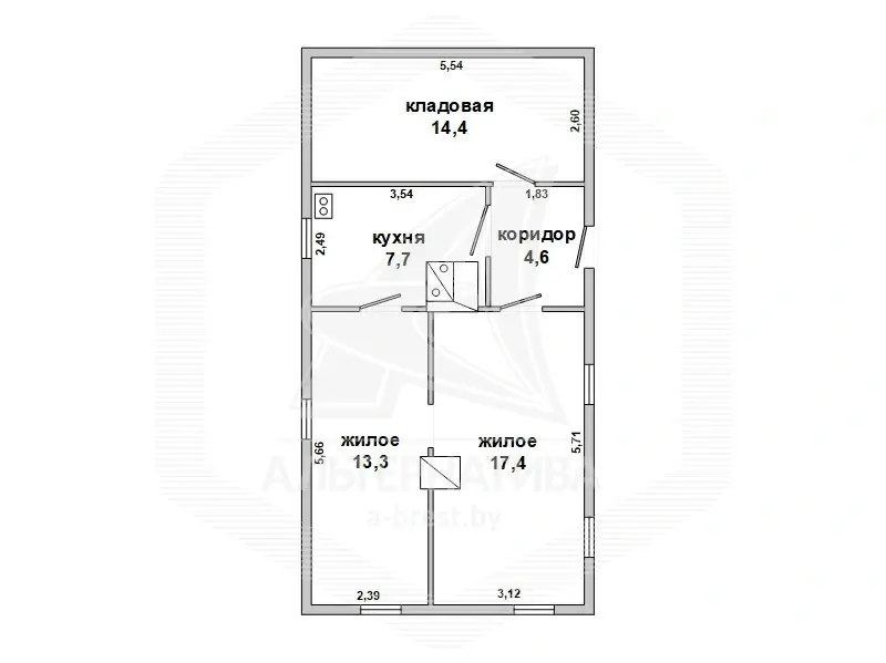
Дом под снос в Брестском р-не. 1930 г.п. 1 этаж. Общ.СНБ - 57,4 кв.м, общ.- 57,4 кв.м, жил.- 30,7 кв.м, кух.- 7,7 кв.м. 2 комнаты, высота потолка - 2,28 м. Стены: материал - строительный брус. Кровля: шифер. Коммуникации: отопление - печь, водоснабжение - колодец, электричество - централизованное. Участок - 0,2500 га. Лот - 252051. Смотреть подробнее.

Здесь можно подписаться на рассылку новых предложений и снижения цен по ДОМАМ и УЧАСТКАМ в Брестском регионе прямо Вам в Viber или Telegram ЗАО «АЛЬТЕРНАТИВА Брест». УНП 291427570 Лицензия № 02240/303 от 02.02.2016г. Договор номер 2051/1 от 15.11.2025
Код объекта: 571257 Договор с собственником: 15.11.2025 №2051/1 Опубликовано: 19.11.2025 Обновлено: 18.12.2025
0 / 0 / 12
Динамика цен за кв. метрДинамика цен
+
Фильтр сохранен