Выберите валюту для сайта:
BYN
Подать БЕСПЛАТНО

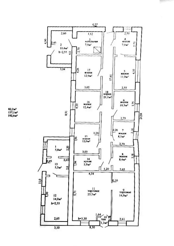
Купить офис на ул. 1 Мая, д. 48 в Ивье, 34500USD, код 8419

192.6 м2 1 этаж из 1
129 078 р.
98 960 р.
Офис
Город Ивье
Адрес ул. 1 Мая, д. 48
Площадь 192.6 м2
Этаж 1

Описание

Здание бывшего общежития.
Данное здание находится на ул 1 мая 48, что обеспечивает легкий доступ к основным транспортным артериям, общественному транспорту и всей необходимой инфраструктуре. Ваша новая собственность может стать не только местом для жилья, но и площадкой для реализации различных бизнес-идей – от гостиничного и хостельного бизнеса до многоквартирного жилого комплекса.
Это идеальный вариант для тех, кто готов вложить свои силы и средства в восстановление объекта, чтобы создать нечто уникальное и востребованное.

 общая площадь 192м2.

Вы можете использовать это помещение для создания самого разнообразного бизнеса – от общежития до коворкинга или даже культурного центра. Варианты ограничены лишь вашей фантазией!

Преимущества этого объекта очевидны, и не стоит затягивать с принятием решения. В действительности такое предложение встречается не так часто, и ваша возможность стать владельцем этого многофункционального пространства может уйти к другому. Мы готовы предоставить всю необходимую информацию и ответить на все ваши вопросы.

Лицензия: №02240/362 от 31.07.2018, Министерство юстиции РБ

Код объекта: 8419 Договор с собственником: 493/1 от 2025-04-01 Опубликовано: 03.04.2025 Обновлено: 28.01.2026
Динамика цен за кв. метрДинамика цен

Вы просматривали

196 485 р. 525 р. за м2
Офис, 192.6 м2
Ивье, ул. 1 Мая, д. 48
98 960 р.
514 р. за м2
Александра
Пожалуйста, скажите, что нашли этот объект на Domovita.by
+
Фильтр сохранен