Выберите валюту для сайта:
BYN
Подать БЕСПЛАТНО
Объект в архиве
К результатам поиска

Снять офис на ул. Садовая, д. 3/В в Каменной Горке, 5800BYN, код 15766

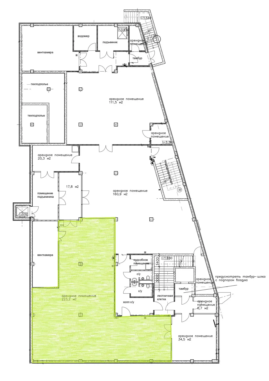
223.2 м2
Объект в архиве
Уважаемые пользователи, данное объявление больше не актуально. Поэтому мы убрали все контакты продавца.
Продолжить поиск
Офис
Адрес ул. Садовая, д. 3/В
Год постройки 2024 г.
Площадь 223.2 м2

Описание

Предлагаем в аренду помещение 223,2 кв.м. на цокольном этаже административно-торгового комплекса по адресу: д. Каменная Горка, ул. Садовая, 3В.

Современное новое здание с оригинальным архитектурным решением, автономная система энергоснабжения, вентиляции, сигнализации.

Система кондиционирования, автономное отопление, пожарная сигнализация, оптоволокно.

Строительная отделка помещений.

Места общего пользования готовы к эксплуатации.

Пассажирский и грузовой лифты.

Пространство в формате open space прекрасно подходит под склад, тихое чистое производство, сферу услуг, шоу-рум, торговое пространство, фитнес-клуб и т.д.

Доступ 24/7. 

Огромная парковка возле здания.

Отличная видимость здания с МКАД с массивным трафиком.

Удобная транспортная доступность, расположение здания с внешней стороны МКАД, развитая инфраструктура.

Коммунальные и эксплуатационные услуги - ок. 15 руб/м.кв. в среднем по году.

Аренда осуществляется с НДС.

Звоните!

---

ООО «ЭТАЖИ юнайтед»

УНП: 193673318

Договор № 87/1а от 27.06.2024

Лицензия на оказание риэлтерских услуг №02240/460 МЮ РБ от 03.04.2023

Код объекта: 15766 Договор с собственником: 87/1а от 2024-06-27 Опубликовано: 09.10.2025 Обновлено: 09.11.2025
Динамика цен за кв. метрДинамика цен
Похожие объекты
Адрес
Комнат
Площадь
Этаж
Цена за м2
Цена
50-комнатная
1000 м2
4 из 4
21 р. за м2
100-комнатная
2000 м2
4 из 4
18 р. за м2
50-комнатная
1000 м2
3 из 4
21 р. за м2
100-комнатная
2000 м2
3 из 4
18 р. за м2
50-комнатная
500 м2
1 из 4
21 р. за м2
+
Фильтр сохранен