Выберите валюту для сайта:
BYN
Подать БЕСПЛАТНО

Купить складское помещение на ул. Новая Заря, д. 33/А в Марьиной Горке

524.5 м2 1 этаж из 1
293 813 р.
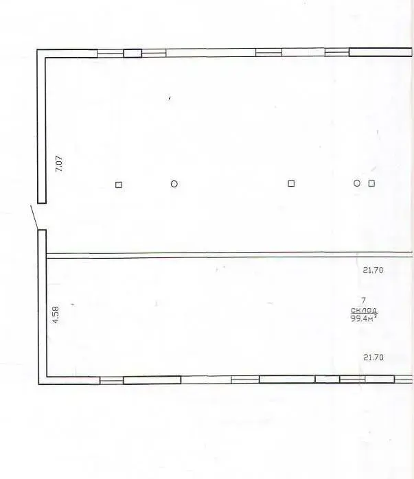
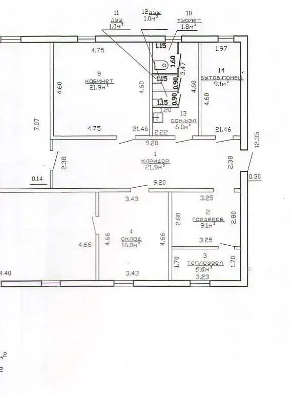
Склад
Адрес ул. Новая Заря, д. 33/А
Площадь 524.5 м2
Этаж 1

Описание

Производство, склад , административные помещения

г. Марьина Горка, ул. Новая Заря , 33А

Площадь:
от 524,5 м2

Состав объекта:

здание специализированное производственное (щитовое, облицованное кирпичом) - 524,5 м2


Земельный участок: 0,9373 га

Покупатель не оплачивает услуги риэлтерской организации!

Одноэтажное здание с ремонтом. Здание отапливаемое (собственная котельная на пиллетах). Собственная электроподстанция. Территория огорожена, охрана.

Характеристики:
• отдельные входы;
• доступ 24/7;
• оптоволокно;
• естественная вентиляция;
• коммуникации: отопление, вода, канализация, электричество.

Ваш агент - Смолка Андрей


Договор №2/3 от 17.01.2025 до 17.01.2027

ООО «Сильван-Инвест», УНП 192927433, лицензия №02240/383, Министерство юстиции РБ, 24.09.2019.

Код объекта: 995146 Договор с собственником: 2/3 от 2025-01-17 Опубликовано: 29.10.2025 Обновлено: 29.11.2025
0 / 0 / 1
Динамика цен за кв. метрДинамика цен
Похожие объекты
Адрес
Комнат
Площадь
Этаж
Цена за м2
Цена
2086.4 м2
1 из 1
501 р. за м2
521.2 м2
1 из 1
560 р. за м2
512.8 м2
1 из 1
560 р. за м2
527.9 м2
1 из 1
560 р. за м2
Склад, 524.5 м2
Марьина Горка, ул. Новая Заря, д. 33/А
293 813 р.
560 р. за м2
ООО "Сильван-Инвест"
Пожалуйста, скажите, что нашли этот объект на Domovita.by
+
Фильтр сохранен