Выберите валюту для сайта:
BYN
Подать БЕСПЛАТНО

Купить офис на пер. Партизанский, д. 4 в Молодечно, 105000USD, код 8540

916.4 м2 1 этаж из 3
352 140 р.
308 123 р.
Офис
Город Молодечно
Адрес пер. Партизанский, д. 4
Год постройки 1993 г.
Площадь 916.4 м2
Этаж 1

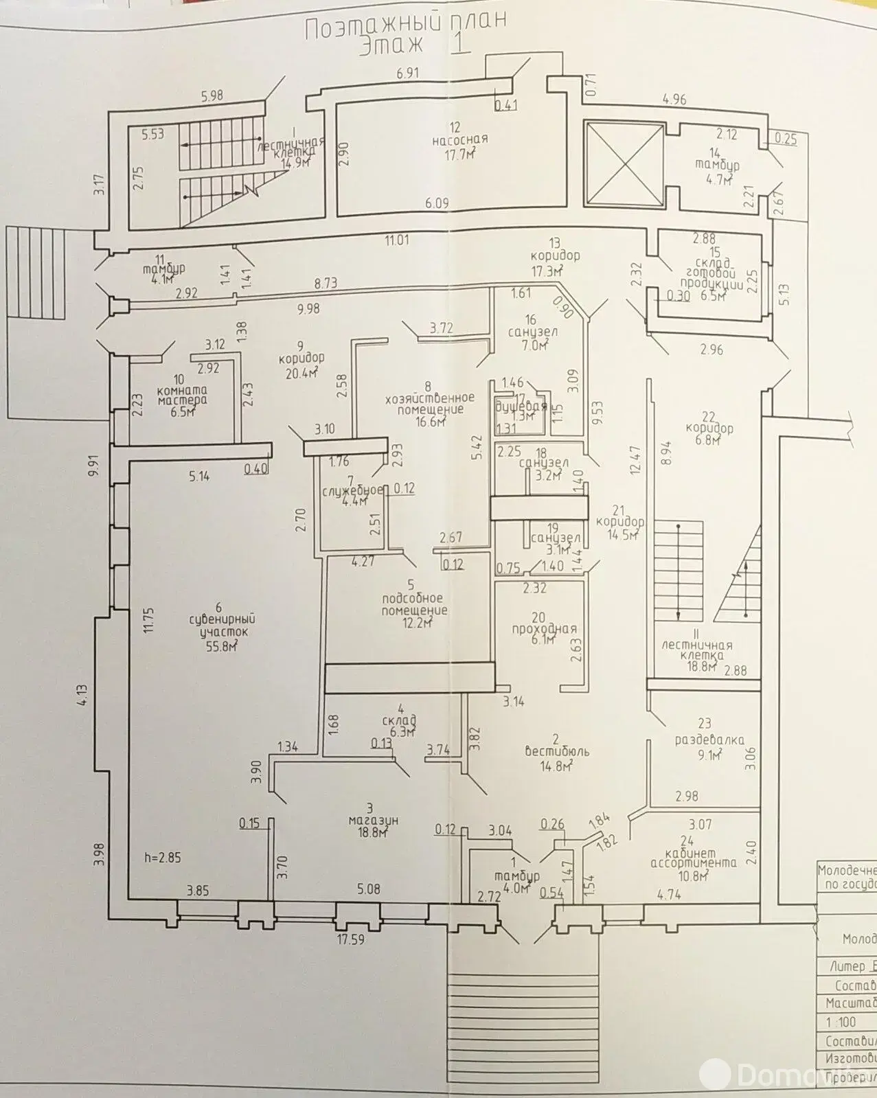
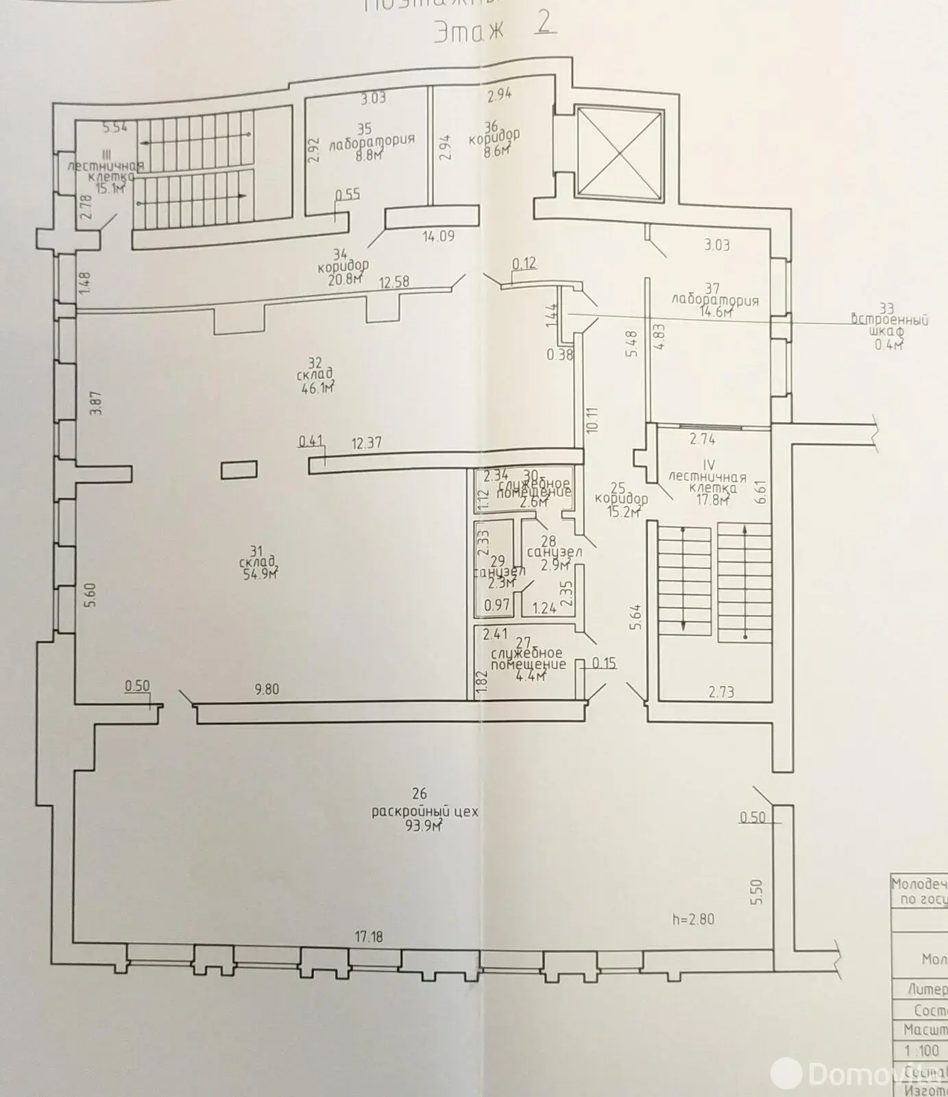
Описание

Продается здание общей площадью 916,4 кв.м., неустановленного назначения, которое может быть использовано под производство, склад, офисы квест-комнаты и прочее в Молодечно по адресу пер. Партизанский, 4.

Здание разделено на 3 зоны:

1 этаж – кабинетная система

2 этаж- производственная часть

3 этаж - административная часть.

Высота потолка достигает ­­­­­­­­­2,80 метров.

  • Вся территория и подъездные пути заасфальтированы;
  • Имеется рампа для погрузки выгрузки товаров;
  • Имеется внутренний двор с воротами.

Коммуникации:

• Мощность 60 кВт с возможностью расширения

• Готовый проект по подведению воды.

Звоните! Согласуем удобное для Вас время показа!

Покупатель не оплачивает услуги агентства!

Код объекта: 8540 Договор с собственником: 2022/2 от 2024-08-23 Опубликовано: 30.04.2025 Обновлено: 17.12.2025
Динамика цен за кв. метрДинамика цен

Вы просматривали

Офис, 916.4 м2
Молодечно, пер. Партизанский, д. 4
308 123 р.
336 р. за м2
Вероника
Пожалуйста, скажите, что нашли этот объект на Domovita.by
+
Фильтр сохранен