Выберите валюту для сайта:
BYN
Подать БЕСПЛАТНО

Купить складское помещение на ул. Ленинская в Острошицком Городке

1631.1 м2 1 этаж из 1
3 908 431 р.
Склад
Адрес ул. Ленинская
Площадь 1631.1 м2
Этаж 1

Описание

Производственный комплекс / база со всеми коммуникациями 1631,1 м + отдельно стоящий гараж 146,9 м.


Продажа + рассматривается долгосрочная аренда с правом выкупа.


ОПИСАНИЕ:
Острошицкий городок (в 13 км от МКАД).
Огороженная территория, площадью более 1 гектара (два участка 44 и 55 соток) с асфальтированным подъездом и видеонаблюдением.
Имеется возможность подключения к газоснабжению, а само здание оборудовано собственной котельной, электроснабжением 380В (с выделенной мощьностью 250kw и возможностью увеличения), центральным водоснабжением, центральной канализацией и подключением к высокоскоростному интернету. Есть места для установки кондиционеров.
Данный производственный комплекс был рассчитан на 200 рабочих мест и готов к немедленной эксплуатации.
Здание не требует дополнительных вложений и полностью подготовлено для запуска производства.
Конструкция здания – ж/б панели, блоки, кирпич. Реконструкция произведена в 2008г. 2 въездных высоких ворот 4 х 4. Высота потолков 5.92м. Полы полимерные. Освещение LED.


Отдельно стоящий гараж с четырьмя воротами и возможностью размещения до 5 автомобилей.

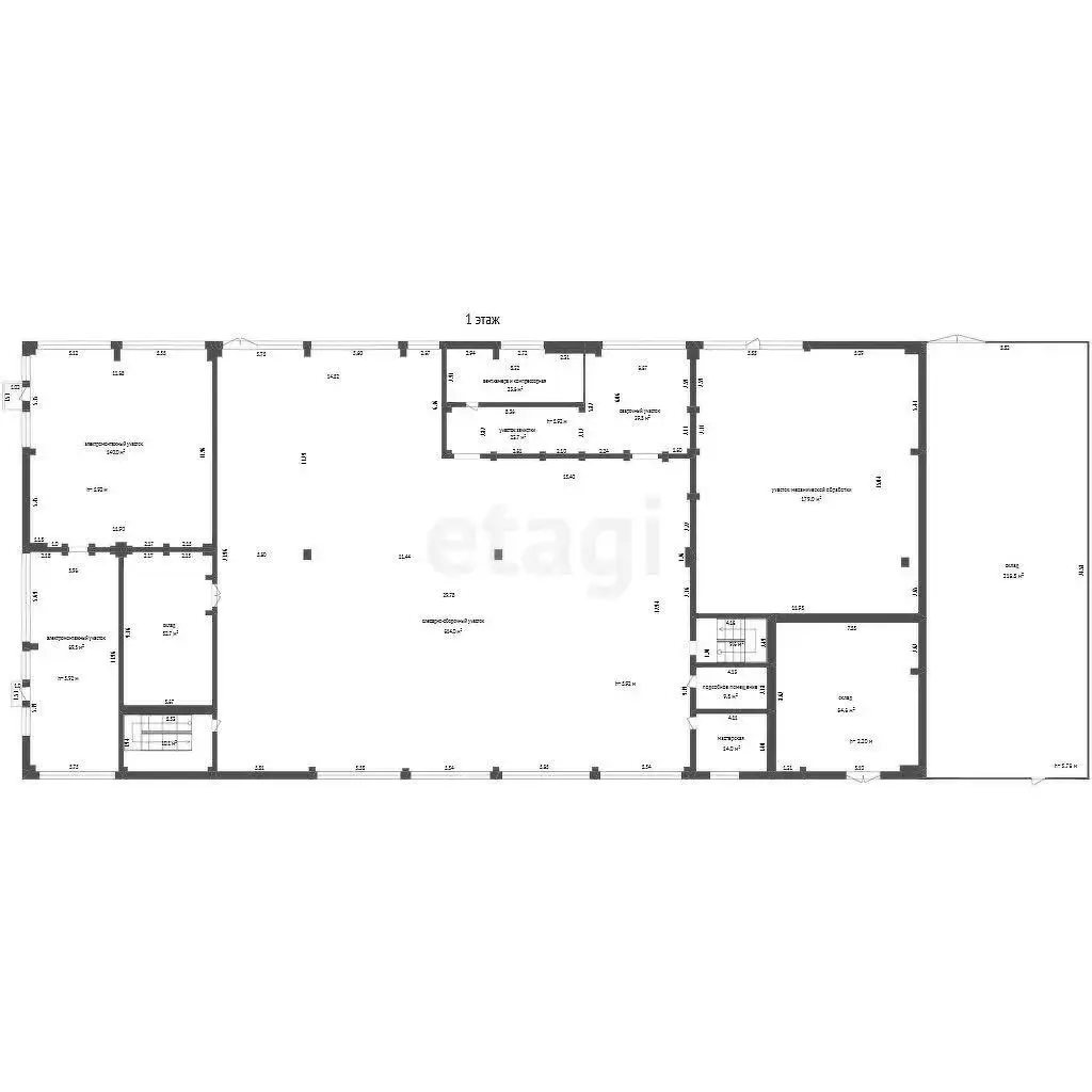
Планировка:
Помимо производственных помещений, в здании оборудованы:
- складские помещения
- комнаты отдыха
- раздевалки
- 4 офисных помещения
- своя котельная (на пеллетах)

Производственные мощности включают в себя:
- сборочный цех электроники
- цех для крупногабаритной сборки
- сварочный цех
- цех чистки
- линии для штамповки, пробивки металла

Об объекте:
Данное предложение представляет большой интерес для инвесторов и предпринимателей, планирующих организацию производства.
Производственные мощности, инфраструктура и укомплектованность оборудованием позволяют запустить производство практически сразу после приобретения объекта.

Цена указана с НДС.

Звоните! Покажем в удобное для вас время.
Покупая этот объект недвижимости, вы будете уверены в безопасности и надежности сделки.
Возможна покупка в кредит!

ООО «ЭТАЖИ юнайтед»
УНП: 193673318
Договор 976/1 от 20.06.2025
Лицензия на оказание риэлтерских услуг №02240/460 МЮ РБ от 03.04.2023

Код объекта: 994950 Договор с собственником: 976/1 от 2025-06-20 Опубликовано: 26.06.2025 Обновлено: 08.03.2026
0 / 0 / 28
Динамика цен за кв. метрДинамика цен
Склад, 1631.1 м2
Острошицкий Городок, ул. Ленинская
3 908 431 р.
2 396 р. за м2
Владимир
Пожалуйста, скажите, что нашли этот объект на Domovita.by
+
Фильтр сохранен