Выберите валюту для сайта:
BYN
Подать БЕСПЛАТНО

Купить помещение под сферу услуг в Островце, ул. Школьная

570.9 м2 2 этаж из 2
446 940 р.
Сервис
Город Островец
Адрес ул. Школьная
Год постройки 2020 г.
Площадь 570.9 м2
Этаж 2

Описание

Продается 12-квартирный жилой дом, как готовый бизнес в городе Островце – современное и комфортное решение для проживания и инвестиций! Идеальная инвестиция с высокой доходностью!

Уютный дом на 12 квартир в живописном городе Островец — месте с богатой историей и развитой инфраструктурой. Уже есть готовые арендаторы, что обеспечивает стабильный доход с первого дня.

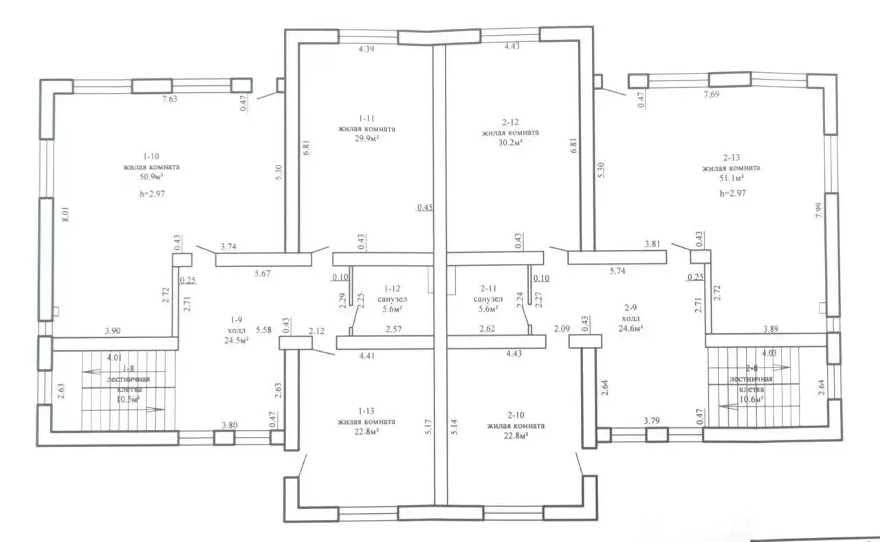
Этот просторный дом общей площадью 570,9 м2 был построен в 2020 году. Жилая площадь составляет 393,7 м2. В доме 6 2-х комнатных и 6 1-комнатных квартир.

Характеристики:

- Собственная скважина глубиной 30м

- Канализация местная на 4 кольца

- Фундамент монолитный - ленточный

- Блок газоселикатный 40см, утеплен минеральной ватой 10см

- Крыша металлочерепица

- Интернет оптоволокно

- Электричество 220/380 кВт

Уютные светлые квартиры меблированы, заселены арендаторами на 100% , что делает приобретение выгодным инвестиционным решением.

Преимущества города Островец:

- Удобное географическое положение: близость к крупным транспортным узлам.

- Развитая инфраструктура: школы, детсады, магазины, медицинские учреждения.

- Экологически чистая среда и богатая природа для активного отдыха.

- Перспективное развитие региона и стабильный спрос на аренду недвижимости.

Придомовая территория площадью 16.85 соток ухожена и располагает к комфортному отдыху.

Дом прекрасно подходит как для личного проживания, так и для стабильного дохода от аренды.

Чистая продажа! 

Напишите нам в удобный для Вас мессенджер:Viber | Telegram | WhatsApp Ответим на Ваши вопросы, предоставим всю необходимую информацию. УНП 193734126 220034, г. Минск, ул. Платонова, дом 1Б,кабинет 7, 7 этаж. ООО «СидНеА» организация и проведение торгов, конкурсов. Договор № 80/1 от 10.06.2025

Код объекта: 4086 Опубликовано: 23.09.2025 Обновлено: 27.10.2025
0 / 0 / 0
Динамика цен за кв. метрДинамика цен

Вы просматривали

Сервис, 570.9 м2
Островец, ул. Школьная
446 940 р.
781 р. за м2
Торговая площадка СидНеА
Пожалуйста, скажите, что нашли этот объект на Domovita.by
+
Фильтр сохранен