Выберите валюту для сайта:
BYN
Подать БЕСПЛАТНО
Объект в архиве
К результатам поиска

Купить земельный участок, 25 соток, Плашево, Минская область, 29000USD, код 571020

25 соток
Объект в архиве
Уважаемые пользователи, данное объявление больше не актуально. Поэтому мы убрали все контакты продавца.
Продолжить поиск
Участок
Город Плашево
Адрес Плашево
Направление Брестское
Удаленность от МКАД 23 км
Участок 25 соток

Описание

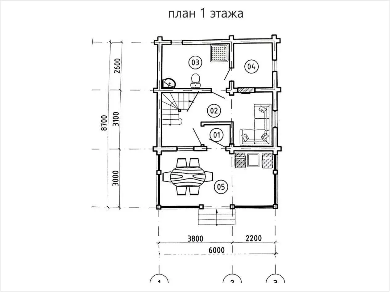
Участок 25 соток (частная собственность) с незавершённым строением в живописном месте на краю деревни. Ровный. Угловой. Делимый. Возможна посадка дополнительного капитального строения. Удобные выезды из Минска с Брестского, Гродненского направления выезда , а также из микрорайона Малиновка. 27 км от МКАД, время в пути на автомобиле 25 минут. Отличное качество подъездных путей. Асфальтированное покрытие до съезда непосредственно на участок. Далее грунт. Ведётся подсыпка асфальтовой крошкой. Трехфазный ввод электричества. Центральный водопровод. Строение- незавершённый строительством жилой дом. Двухуровневый сруб 6Х8.7м. Закрытый. На ленточном фундаменте. Брус 200мм. Кровля скатная, покрытие катепал. Уложена мембрана. Внутренняя подсыпка помещений по полу. Отличное окружение- живая деревня, приветливые соседи. Работает продовольственный магазин. Остановка автобуса (три раза в день, следует до станции на Юго-западе) в трех минутах ходьбы. В километре от деревни- остановка маршрутных такси до станции метро Каменная Горка и Пушкинская. Прямая продажа. Подробные вопросы по телефону. ООО "Твоя столица", УНП 101136973, лицензия №02240/15 от 17.02.05г.
Код объекта: 571020 Договор с собственником: 13.08.2025 №725/13 Опубликовано: 17.09.2025 Обновлено: 29.09.2025
0 / 0 / 18
Динамика цен за кв. метрДинамика цен
+
Фильтр сохранен