Продажа гаража в Ракове ул. Радошковичская, д. 41/А/7, 79000USD, код 9570

252 м2 1 этаж из 2
882 р./м2
Гараж
Город Раков
Адрес ул. Радошковичская, д. 41/А/7
Год постройки 2025 г.
Площадь 252 м2
Этаж 1

Описание

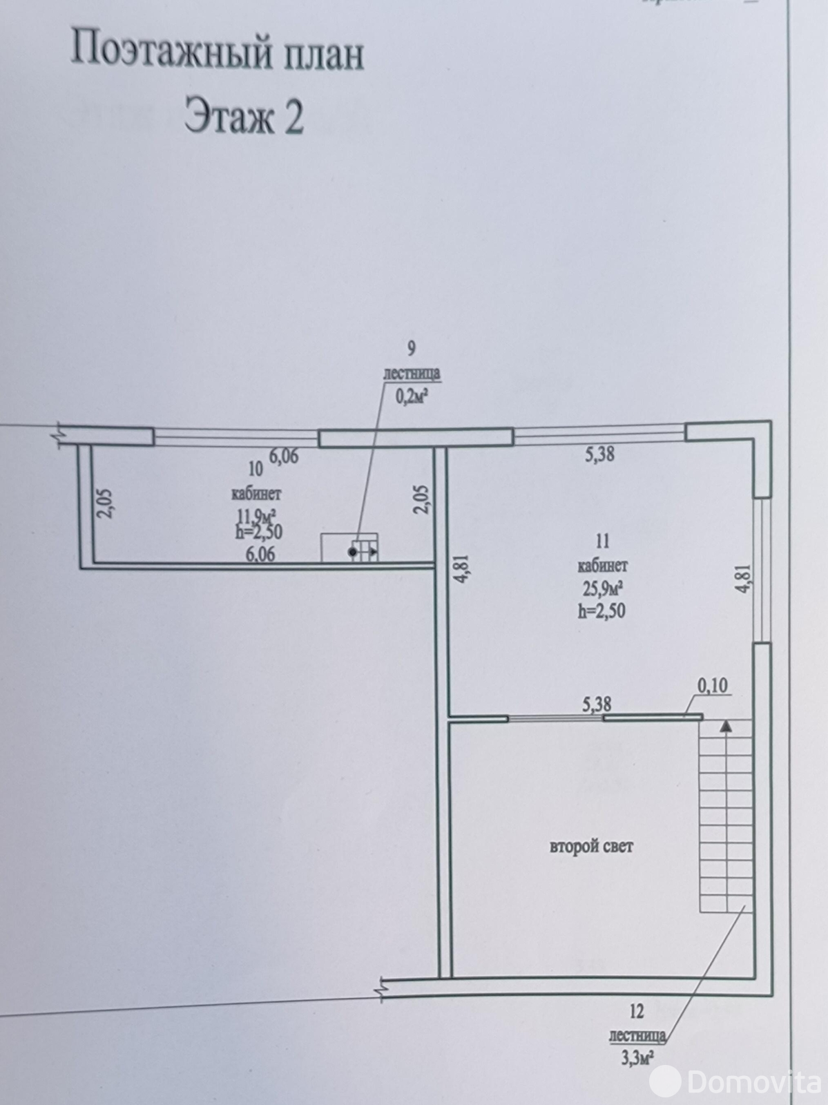
Новый большой гараж под СТО на 252 м.кв. Удобное расположение, прямо у трассы Минск-Гродно (30км от МКАД) на развязке в а.г. Раков. Гараж оборудован двумя большими ролетными воротами (4х4м) и отдельным входом для клиентов и персонала. В гараже есть большая ремзона на два подъемника (100 м.кв.), помещения для приема заказов (19,6 м.кв.), персонала (12 м.кв.), зона ожидания (24,2 м.кв.) и кабинет руководителя (26 м.кв.) на втором этаже с окном в ремзону и на ресепшен, туалет, душ, комната для умывания, склад в цокольном этаже (50,3 м.кв., h=2.5 м.). Есть электричество на 380В, мощность 10кВт с возможностью увеличить под электроотопление. Подведена вода. Канализация местная. Есть места для парковки транспорта.  Гараж находится в частной собственности и расположен на территории ГК «Леоновка-20» (земля кооператива).

Звоните, отвечу на все имеющиеся вопросы и организую показ в удобное для Вас время.

Код объекта: 9570 Договор с собственником: 505/1 от 2026-04-17 Опубликовано: 28.04.2026 Обновлено: 28.04.2026
2 / 0 / 0
Динамика цен за кв. метрДинамика цен

Вы просматривали

Гараж, 252 м2
Раков, ул. Радошковичская, д. 41/А/7
222 314 р.
882 р. за м2
Дмитрий
Пожалуйста, скажите, что нашли этот объект на Domovita.by
+
Фильтр сохранен