Выберите валюту для сайта:
BYN
Подать БЕСПЛАТНО

Купить помещение под сферу услуг в Скрыле-Слободе,

679.9 м2 1 этаж из 1
600 000 р.
Сервис
Адрес Скрыль-Слобода
Год постройки 2019 г.
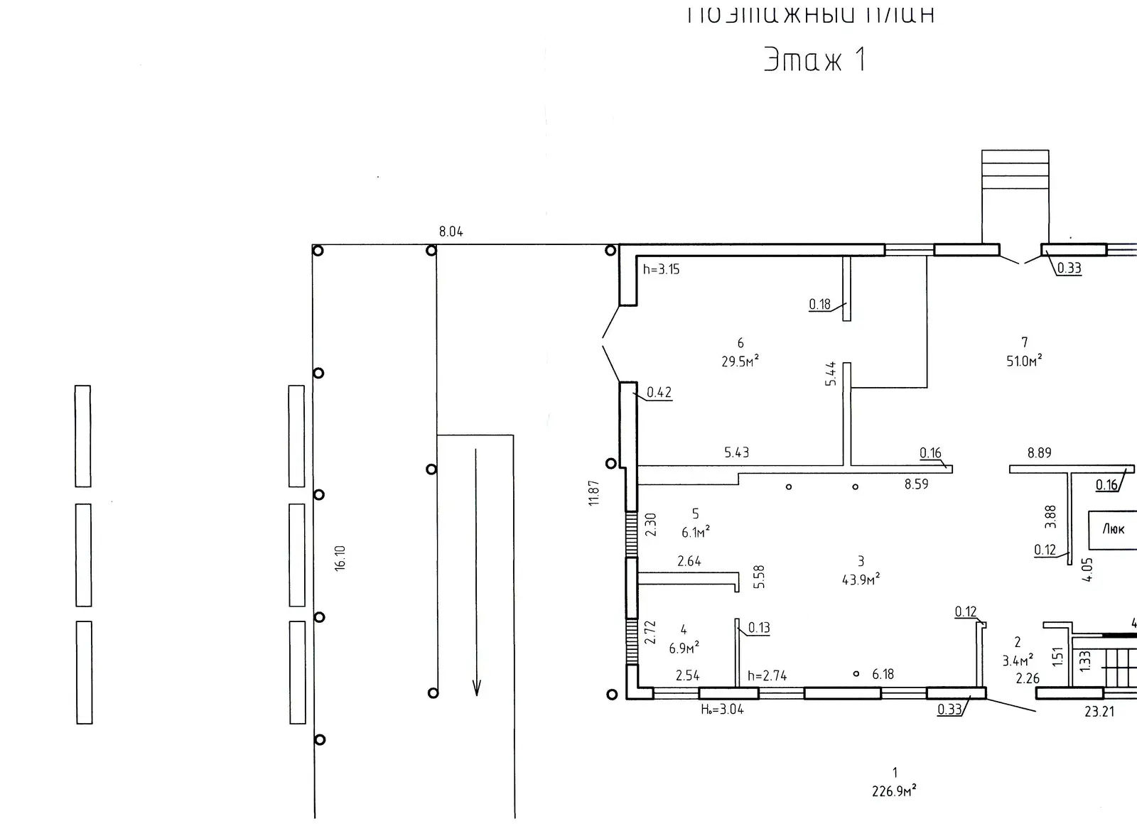
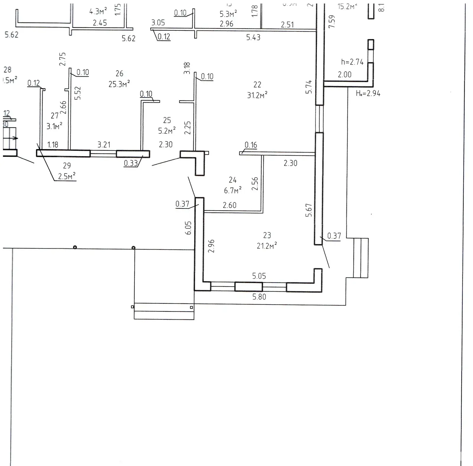
Площадь 679.9 м2
Этаж 1

Описание

Местонахождение: РБ, Минская обл., Пуховичский р-н, д.Скрыль-Слобода (62км от МКАД).
Незавершённое законсервированное капитальное строение для пищевого производства (по проекту, мясоперерабатывающий цех для консервного производства находящийся на модернизации): нежилое здание площадью 679.9 м2 (без учёта 2ого этажа мансардного типа, полезной площади 270м2) на земельном участке 1,294 га (с правом постоянного пользования) с дополнительной инфраструктурой (проходная, 2а дизбарьера). Сети:
-Очистные сооружения (канализация) производительностью 12м3/сут., состоящей из: жироуловителя, септика и подземных полей фильтрации.
-Электроэнергия: ТП 160 КВт(трансформаторная подстанция) на балансе предприятия.
Вода: существующий водопровод (60м скважина местного СПК, для бесперебойной подачи оборудован накопитель 500л.). Запроектированная (согласованная) скважина на территории МПЦ, с разрешённой глубиной более 60м. К месту бурения подведены сети.
-Отопление (газ): - проведен (до котельной) газопровод среднего давления. Запроектирована (проект согласован и защищён) котельная в здании МПЦ .
- Проведены/узаконены проектные работы: Общий проект модернизации МПЦ (с частями архитектура, КВ, ОВ и т.д.); Электро проект МПЦ; Технологический пр-т; Проект котельной от существ. газопровода среднего давления;  Проект глубоководной скважены.

Лицензия: №02240/362 от 31.07.2018, Министерство юстиции РБ

Код объекта: 3950 Договор с собственником: 1100 от 2025-07-25 Опубликовано: 30.07.2025 Обновлено: 09.03.2026
0 / 0 / 2
Динамика цен за кв. метрДинамика цен

Вы просматривали

Сервис, 679.9 м2
Скрыль-Слобода
600 000 р.
882 р. за м2
Фаттория Плюс
Пожалуйста, скажите, что нашли этот объект на Domovita.by
+
Фильтр сохранен