Выберите валюту для сайта:
BYN
Подать БЕСПЛАТНО
Объект в архиве
К результатам поиска

Продажа 1-этажной дачи в Южное Брестская область, 99900USD, код 173285

112.13 м2
Объект в архиве
Уважаемые пользователи, данное объявление больше не актуально. Поэтому мы убрали все контакты продавца.
Продолжить поиск
Дача
Город Южное
Адрес Южное
Год постройки 2019
  
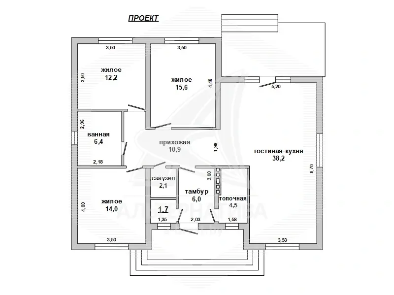
Общая площадь 112.13 м2
Участок 5.04 соток
Площадь дома 112.13 м2
Этажей 1
Материал стен Блоки
Отделка С ремонтом
Тип отопления Газовое
Водоснабжение Скважина
Удобства
Баня

Описание

Дачный дом жилого типа в Брестском р-не. 2019 г.п. 1 этаж. Общ. СНБ - 112,13 кв.м, общ. - 112,13 кв.м, жил. - 41,93 кв.м, кухня - 38,24 кв.м, 3 комнаты. Стены: материал - газосиликатный блок; утепление - пенополистирол (пенопласт); отделка фасада - штукатурка "американка". Кровля: металлочерепица. Фундамент: ленточный монолитный; материал - бетон. Коммуникации: отопление - газовый котел, газ - централизованный (в доме), водоснабжение - скважина и гидрофор, электричество - централизованное, канализация - автономная. Хоз.постройки: баня, детская площадка, вольер, хоз. помещение. Бытовая техника и мебель остается. Участок - 0,0504 га. Лот - 231038. Смотреть подробнее.

Здесь можно подписаться на рассылку новых предложений и снижения цен по ДАЧАМ и УЧАСТКАМ в Брестском регионе прямо Вам в Viber или Telegram ЗАО «АЛЬТЕРНАТИВА Брест». УНП 291427570 Лицензия № 02240/303 от 02.02.2016г. Договор номер 1038/1 от 10.04.2023
Код объекта: 173285 Договор с собственником: 10.04.2023 №1038/1 Опубликовано: 12.04.2023 Обновлено: 19.01.2026
0 / 0 / 116
+
Фильтр сохранен