Выберите валюту для сайта:
BYN
Подать БЕСПЛАТНО

Продажа комнаты в Жодино, ул. Рокоссовского, д. 28, цена 42000 USD, код 7203

82 м2 7 этаж
2 757 р./м2
Дом
Город Жодино
Адрес ул. Рокоссовского, д. 28
Этажность 9
Год постройки 2015
Квартира
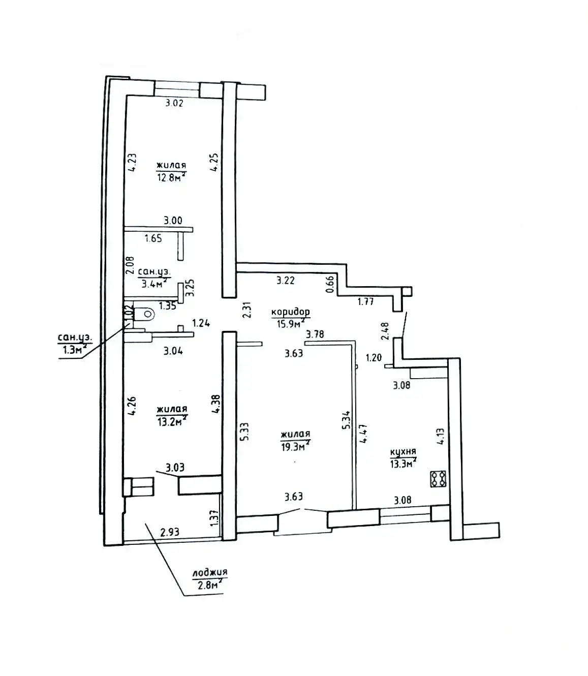
Общая площадь 82 м2
Продаваемая площадь 44.28 м2
Кухня 13.3 м2
Комнат 3
Этаж 7
Санузел раздельный
Балкон Лоджия
Ремонт Хороший
Условия продажи продажа

Описание

Продаются 2 комнаты в 3-х комнатной квартире.

Уютные, светлые комнаты. 

Доля 54/100 выделена, соответствует комнатам лощадью 13.2 кв. м с примыкающей лоджией площадью 2.8 кв.м. и площадью 12.8 кв.м., что составляет  33/100 долей от общей площади жилого помещения, и ½ доли в подсобных помещениях: кухня-13.3 кв.м, коридор – 19.5 кв.м., ванная комната -3,4 кв.м., туалет -1.3 кв.м., что составляет 21/100 долю от общей площади жилого помещения.

Параметры квартиры: площадь по СНБ 82.0 кв.м., жилая 45.3 кв м. Раздельные комнаты, раздельный санузел-облицован плиткой, кухня 13.3 кв.м. Высота потолка 2.8 м.

В комнате и на лоджии установлены стеклопакеты, Входная дверь металлическая. Одна комната в хорошем состоянии с ремонтом, вторая комната подготовлена под поклейку обоев по своему вкусу. Оборудованная кухня.

Дом сдан в 2015г,

Удобное месторасположение, в шаговой доступности находятся: супермаркеты, банки, почта, рынок, магазины, кафе, детский сад, школа.

Лицензия: №02240/362 от 31.07.2018, Министерство юстиции РБ

Код объекта: 7203 Договор с собственником: 1041/1 от 2025-07-14 Опубликовано: 23.07.2025 Обновлено: 04.12.2025
1 / 0 / 12
Динамика цен за кв. метрДинамика цен

Вы просматривали

Комната, 44.28 м2
Жодино, ул. Рокоссовского, д. 28
122 165 р.
2 757 р. за м2
Фаттория Плюс
Пожалуйста, скажите, что нашли этот объект на Domovita.by
+
Фильтр сохранен