Выберите валюту для сайта:
BYN
Подать БЕСПЛАТНО

Снять торговую точку на пр-т Мира, д. 19/А в Жодино, 4275USD, код 967527

534.4 м2 1 этаж из 4
12 738 р./мес.
Торговый объект
Город Жодино
Адрес пр-т Мира, д. 19/А
Год постройки 2007 г.
Площадь 534.4 м2
Этаж 1

Описание

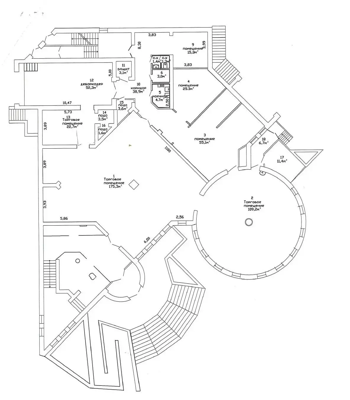
Аренда торгового помещения в ТЦ "Сити", г. Жодино

Идеальное место для вашего бизнеса!

Предлагаем в аренду просторное торговое помещение площадью 534,4 м2 на 1-м этаже торгового центра "Сити"по адресу: Минская область, Смолевичский район, г. Жодино, просп. Мира, 19/А.

 

Преимущества объекта:

Выгодное расположение:

•  Помещение находится в центре города Жодино, в густонаселённом районе с развитой инфраструктурой.

•  Рядом расположены административные здания, учебные заведения, культурно-досуговые центры, жилые дома и крупные предприятия (ОАО «БЕЛАЗ», ОАО «Світанак»).

•  Удобная транспортная развязка: 46 км от Минска по новой скоростной автомагистрали.

Отличная проходимость:

•  Торговый центр "Сити" уже размещает магазины одежды, обуви, кафе, банк, стоматологический кабинет, детские товары и многое другое, что обеспечивает высокий поток покупателей.

Удобная логистика:

•  Разгрузочная рампа для быстрой и эффективной доставки товаров.

•  Многоместная парковка для автомобилей у входа.

•  Удобные подъездные пути для транспорта.

 Технические характеристики:

•  Площадь: 534,4 м2 (два просторных торговых зала + вспомогательные помещения).

•  Этаж: 1-й из 4-х.

•  Материал стен: кирпич.

•  Высота потолков: 3 м.

•  Состояние: хороший ремонт.

•  Коммуникации: отопление, электроснабжение, вода, санузел.

•  Естественное освещение: есть.

 

Условия аренды:

 Стоимость аренды:

в месяц (8дол.за 1 м2). НДС: 0%.  В стоимость аренды не входят: коммунально-эксплуатационные услуги, налог на недвижимость, земельный налог, страховые взносы (при необходимости).

 

Возможности использования:

 Торговые точки (магазины одежды, обуви, электроники, продуктов и т.д.)  Кафе, рестораны, фастфуд , офисы, представительства компаний . Медицинские и косметологические центры.  Развлекательные заведения (игровые клубы, квесты и т.д.). Образовательные центры

Лицензия: 02240/446 МЮ РБ, 11.07.2022

Код объекта: 967527 Договор с собственником: 36/1А от 2025-08-25 Опубликовано: 27.08.2025 Обновлено: 23.10.2025
0 / 0 / 2
Динамика цен за кв. метрДинамика цен
Похожие объекты
Адрес
Комнат
Площадь
Этаж
Цена за м2
Цена
26.5 м2
1 из
41 р. за м2

Вы просматривали

Торговый объект, 534.4 м2
Жодино, пр-т Мира, д. 19/А
12 738 р./мес.
24 р. за м2
Фаттория
Пожалуйста, скажите, что нашли этот объект на Domovita.by
+
Фильтр сохранен