Выберите валюту для сайта:
BYN
Подать БЕСПЛАТНО

Купить торговую точку на пр-т Мира, д. 19/А в Жодино, 55200USD, код 998059

184 м2
163 800 р.
Торговый объект
Город Жодино
Адрес пр-т Мира, д. 19/А
Год постройки 2007 г.
Площадь 184 м2

Описание

 Предложение: продаётся многофункциональное помещение в центре Жодино!

Идеальное решение для офиса, складских или вспомогательных помещений!

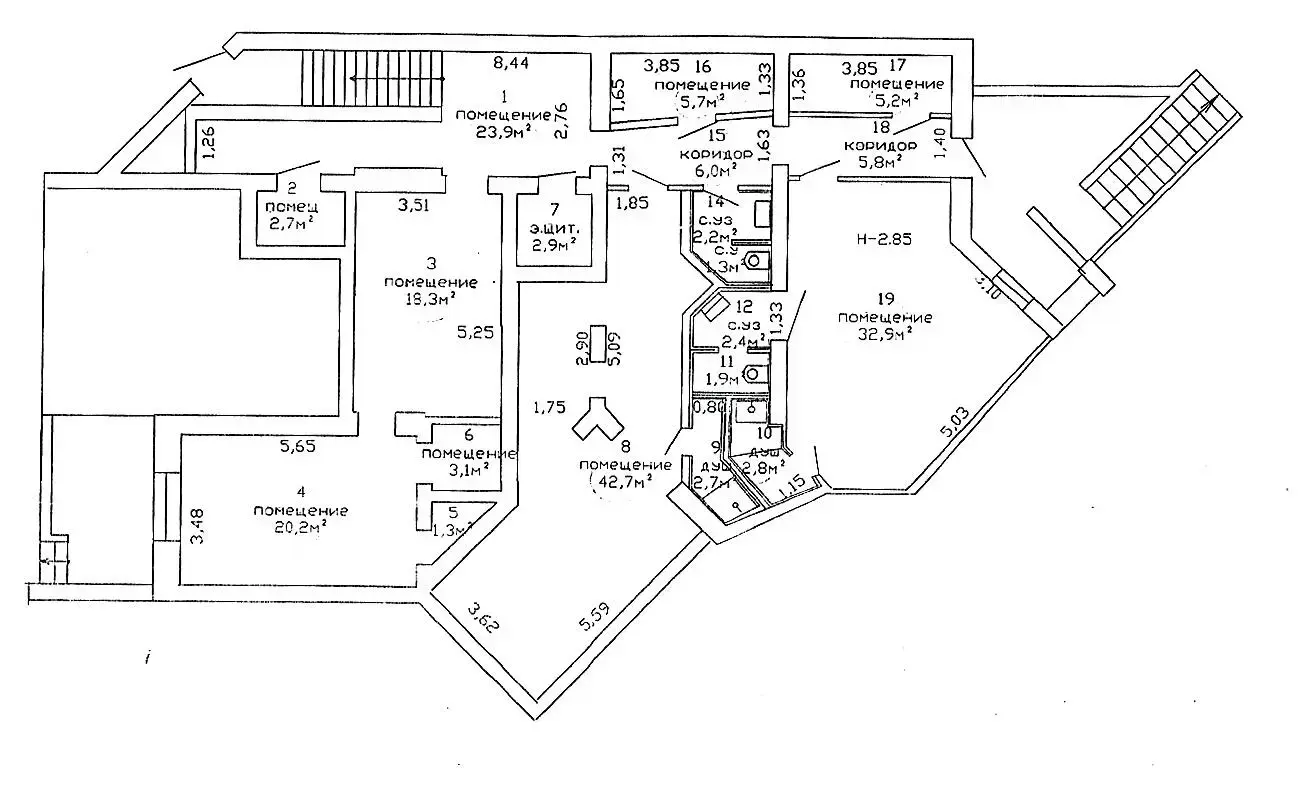
Предлагаем к продаже многофункциональное помещение площадью 184 м2, расположенное в торговом центре "Сити" по адресу: Минская область, Смолевичский район, г. Жодино, просп. Мира, 19/А.

 

 Почему это выгодное предложение?

Город Жодино — это крупный индустриальный и научный центр Минской области, где расположены такие гиганты, как ОАО «БЕЛАЗ» и ОАО «Свiтанак». Население города составляет около 65 тысяч человек, что гарантирует высокий спрос на коммерческую недвижимость.

Торговый центр "Сити" — это многофункциональный комплекс, где уже успешно работают магазины одежды, обуви, кафе, банки, детские товары, стоматологические кабинеты и другие объекты. Ваше помещение будет находиться в центре деловой активности!

 

 Основные параметры помещения:

•  Общая площадь:184 м2

•  Цена:55 200,всего 300 за 1 м2)

•  НДС:0% (выгодные условия для покупателя)

•  Этаж:Цокольный этаж (общая этажность здания — 4 этажа)

•  Год постройки:2007 (современное здание с надёжной конструкцией)

•  Материал стен:кирпич (прочность и долговечность)

•  Состояние помещения:хороший ремонт (готово к использованию)

 

Подробное описание помещения:

Это помещение ранее использовалось компанией ОДО «АКВА-ФРИСТАЙЛ» с 2008 по 2024 год в качестве многофункционального пространства, включающего:

•  Офисные помещения

•  Раздевалки и душевые комнаты для сотрудников

•  Санузел

•  Комнату охраны

Преимущества помещения:Удобное расположение в цокольном этаже торгового центра ✔ Естественное освещение (несмотря на цокольный этаж) ✔ Готовые коммуникации (отопление, электроснабжение, вода, санузел) ✔ Парковка для сотрудников и клиентовУдобные подъездные пути для транспорта

 

Преимущества покупки:

1.  Выгодное расположение в центре Жодино, в густонаселённом районе с развитой инфраструктурой.

2.  Высокий спрос на коммерческую недвижимость благодаря соседству с крупными предприятиями и учебными заведениями.

3.  Удобная транспортная доступность — всего 46 км от Минска по новой скоростной автомагистрали.

4.  Готовая инфраструктура — отопление, электроснабжение, вода, санузел.

5.  Парковка для сотрудников и клиентов и удобные подъездные пути.

6.  Возможность использования под различные виды бизнеса — офис, склад, вспомогательные помещения, фитнес-центр, медицинский кабинет и т.д.

 

Возможности использования:

Это помещение идеально подходит для:  Офисных помещений (для компаний, представительств, стартапов) . Складских помещений (для хранения товаров, логистических компаний) . Вспомогательных помещений(раздевалки, душевые, комнаты отдыха для сотрудников). Фитнес-центров и спортивных залов . Медицинских кабинетов и косметологических центров . Образовательных центров и учебных классов

 

Дополнительные преимущества:

•  Развитая инфраструктура вокруг торгового центра.

•  Близость к крупным предприятиям и учебным заведениям.

•  Высокий уровень безопасности и комфорта для сотрудников и клиентов.

 

Это помещение — отличный выбор для тех, кто хочет развивать бизнес в одном из самых перспективных районов Минской области!

 

Дополнительная информация:

•  Помещение находится в торговом центре "Сити", где уже успешно работают магазины, кафе, банки и другие объекты обслуживания.

•  Удобная транспортная развязка и высокий поток посетителей делают это место идеальным для бизнеса.

 

Лицензия: 02240/446 МЮ РБ, 11.07.2022

Код объекта: 998059 Договор с собственником: 641/1 от 2025-08-25 Опубликовано: 27.08.2025 Обновлено: 23.10.2025
0 / 0 / 1
Динамика цен за кв. метрДинамика цен
Похожие объекты
Адрес
Комнат
Площадь
Этаж
Цена за м2
Цена
534.4 м2
1 из 4
2 196 р. за м2
718.4 м2
1 из 4
1 861 р. за м2

Вы просматривали

Торговый объект, 184 м2
Жодино, пр-т Мира, д. 19/А
163 800 р.
890 р. за м2
Фаттория
Пожалуйста, скажите, что нашли этот объект на Domovita.by
+
Фильтр сохранен