Выберите валюту для сайта:
BYN
Подать БЕСПЛАТНО

Купить торговое помещение на пр-т Мира, д. 19/А в Жодино, 395456USD, код 998060

534.4 м2 1 этаж из 4
1 165 923 р.
Торговый объект
Город Жодино
Адрес пр-т Мира, д. 19/А
Год постройки 2007 г.
Площадь 534.4 м2
Этаж 1

Описание

 Эксклюзивное предложение: продаётся премиальное торговое помещение в центре Жодино!

Идеальное место для успешного бизнеса!

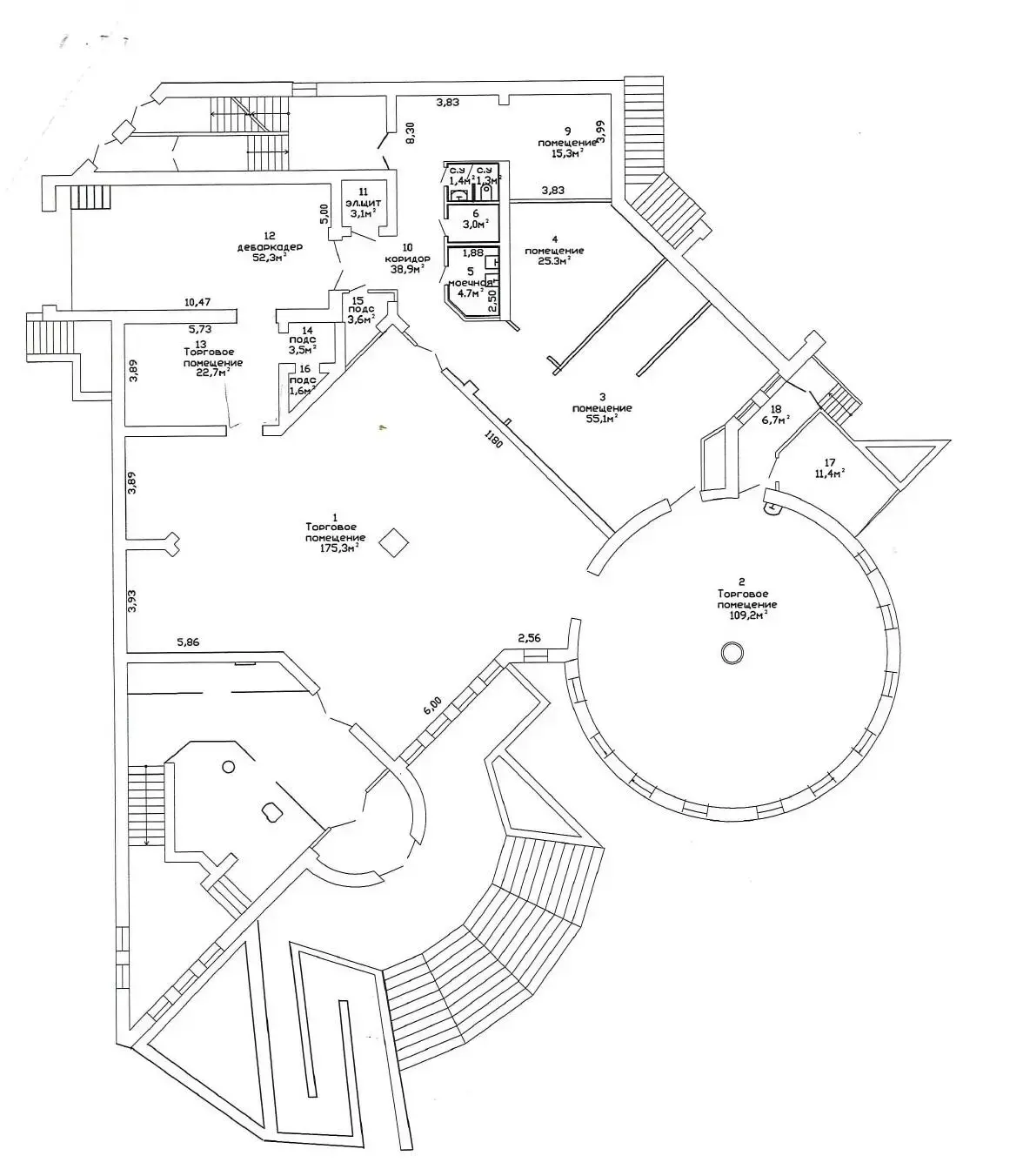
Предлагаем к продаже торговое помещение премиум-класса общей площадью 534,4 м2, расположенное на первом этаже современного торгового центра "Сити" по адресу: Минская область, Смолевичский район, г. Жодино, просп. Мира, 19/А.

 

 Почему это выгодное вложение?

Город Жодино — это крупный индустриальный и научный центр Минской области, где расположены такие гиганты промышленности, как ОАО «БЕЛАЗ» и ОАО «Свiтанак». Население города составляет около 65 тысяч человек, что гарантирует высокий поток потенциальных клиентов.

Торговый центр "Сити" — это многофункциональный комплекс, где уже успешно работают магазины одежды, обуви, кафе, банки, детские товары, стоматологические кабинеты и другие объекты. Ваш бизнес будет в центре деловой активности города!

 

 Основные параметры помещения:

•  Общая площадь:534,4 м2

•  Цена:395 456дол.
(всего 740дол. за 1 м2)

•  НДС:0% (выгодные условия для покупателя)

•  Этаж:1-й этаж (максимальная проходимость)

•  Этажность здания:4 этажа

•  Год постройки:2007 (современное здание с надёжной конструкцией)

•  Материал стен:кирпич (прочность и долговечность)

•  Высота потолков:3 м (просторно и комфортно)

•  Состояние помещения:хороший ремонт (готово к использованию)

 

 Подробное описание помещения:

Торговые залы:

•  Два просторных торговых зала с вспомогательными помещениями (технический паспорт прилагается).

•  Разгрузочная рампа для удобства логистики и снабжения, что обеспечивает быструю и эффективную доставку товаров.

•  Удобные подъездные пути и многоместная парковка для автомобилей у входа.

Инфраструктура:

•  Отопление, электроснабжение, вода, санузел — всё необходимое для комфортной работы.

•  Естественное освещение — большие окна, обеспечивающие светлый и привлекательный интерьер.

•  Высокий поток посетителей благодаря расположению на первом этаже торгового центра.

 

 Преимущества покупки:

1.  Выгодное расположение в центре Жодино, в густонаселённом районе с развитой инфраструктурой.

2.  Высокий пешеходный трафик благодаря соседству с магазинами, кафе, банками и другими объектами обслуживания.

3.  Удобная транспортная доступность — всего 46 км от Минска по новой скоростной автомагистрали.

4.  Готовая инфраструктура — отопление, электроснабжение, вода, санузел.

5.  Парковка для клиентов и удобные подъездные пути.

6.  Возможность использования под различные виды бизнеса — торговля, офис, развлечения, услуги.

 

 Возможности использования:

Это помещение идеально подходит для: Торговых точек (магазины одежды, обуви, электроники, продуктов) . Кафе, ресторанов, фастфуда.Офисов и представительств компаний.Медицинских и косметологических центров.Развлекательных заведений (игровые клубы, квесты). Образовательных центров

 

 Инвестиционная привлекательность:

•  Высокий спрос на коммерческую недвижимость благодаря соседству с крупными предприятиями и учебными заведениями.

•  Стабильный поток клиентов благодаря расположению в торговом центре с развитой инфраструктурой.

•  Возможность быстрого запуска бизнеса — помещение готово к использованию.

 

 

 Дополнительные преимущества:

•  Развитая инфраструктура вокруг торгового центра.

•  Близость к крупным предприятиям и учебным заведениям.

•  Высокий уровень безопасности и комфорта для сотрудников и клиентов.

Не упустите свой шанс приобрести этот прекрасный торговый объект!

Лицензия: 02240/446 МЮ РБ, 11.07.2022

Код объекта: 998060 Договор с собственником: 640/1 от 2025-08-25 Опубликовано: 27.08.2025 Обновлено: 27.11.2025
0 / 0 / 3
Динамика цен за кв. метрДинамика цен
Похожие объекты
Адрес
Комнат
Площадь
Этаж
Цена за м2
Цена
184 м2
737 р. за м2
718.4 м2
1 из 4
1 849 р. за м2

Вы просматривали

Торговый объект, 534.4 м2
Жодино, пр-т Мира, д. 19/А
1 165 923 р.
2 182 р. за м2
Фаттория
Пожалуйста, скажите, что нашли этот объект на Domovita.by
+
Фильтр сохранен