Выберите валюту для сайта:
BYN
Подать БЕСПЛАТНО

Купить земельный участок, 12.5 соток, Косино, Минская область, 31000USD, код 571021

12.5 соток
96 796 р.
Участок
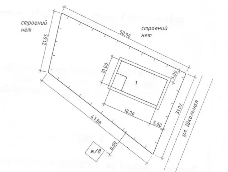
Город Косино
Адрес ул. Школьная, д. 2/Б
Направление Логойское
Удаленность от МКАД 28 км
Участок 12.5 соток
Канализация Есть

Описание

Продаётся участок в Логойском районе в 30 км от МКАД – ваш шанс на загородную идиллию!

Предлагаем вашему вниманию прекрасный участок земли площадью 12.5 соток, расположенный в живописном Логойском районе, всего в 30 километрах от Минской кольцевой автодороги рядом с горнолыжным курортом Силичи. Это идеальное место для тех, кто мечтает о собственном доме вдали от городской суеты, но при этом не хочет терять связь с цивилизацией.

Участок находится в а. г. Косино, где есть вся необходимая инфраструктура: школа, детский сад, продуктовые магазины, почта, пункт оказания медицинской помощи, страринная церковь. Рядом лес, в 2 километрах 2 озера, в одном из них разводят рыбу.

Преимущества местоположения и ландшафта:

Участок выгодно расположен – он предпоследний на улице, что гарантирует вам минимум трафика и максимум уединения. Отсутствие застройки напротив открывает прекрасный вид на окрестности и обеспечивает дополнительную приватность. Ровный рельеф участка значительно упрощает процесс строительства и ландшафтного дизайна.

Готовый фундамент – основа вашего будущего дома:

На участке уже залит прочный свайно-ростверковый фундамент под  дом. Это значительная экономия времени и средств на начальном этапе строительства. Вы можете сразу приступить к возведению стен и воплощению своих архитектурных замыслов.

Для строительства дома закуплены керамзитбетонные блоки, выбранные за их прочность и теплоизоляционные свойства. Закуплены окна Rehau цвета антрацит, не только добавят современный штрих в архитектуру, но и обеспечат высокую энергоэффективность.  Изовер, приобретенный вместе с остальными материалами, гарантирует комфортный микроклимат в доме в любое время года. Все материалы входят в общую стоимость.

На участке оборудована местная канализации, центральный водопровод и электричество по улице.

Перспективы и возможности:

Логойский район славится своей экологически чистой природой, богатыми лесными массивами и живописными озерами. Здесь вы сможете наслаждаться свежим воздухом, активным отдыхом на природе и тишиной, которой так не хватает в городе.

Развитая инфраструктура района обеспечивает комфортное проживание круглый год. Не упустите возможность приобрести этот замечательный участок и построить дом своей мечты!

ООО «ВСП недвижимость-Инвест»

Агентство недвижимости

УНП: 193594828 Лицензия: № 02240/430 МЮ РБ, 18.11.2021

Код объекта: 571021 Договор с собственником: 255/4 от 2025-09-17 Опубликовано: 18.09.2025 Обновлено: 13.03.2026
2 / 3 / 135
Динамика цен за кв. метрДинамика цен
Участок, 12.5 соток
Косино, ул. Школьная, д. 2/Б
90 929 р.
Алена Радивило
Пожалуйста, скажите, что нашли этот объект на Domovita.by
+
Фильтр сохранен