Подать БЕСПЛАТНО

Продажа 1-этажного коттеджа в Крейванцах, Гродненская область ул. Зинаиды Сломко, д. 1, 5900USD, код 655130

Гродненская область, аг. Крейванцы, ул. Зинаиды Сломко, 1
Показать на карте
17 263 р.
Код объекта: 655130
205.4 м2
27.94 соток
Обновлено: 21.11.2025
17 263 р.
Предложить свою цену

О доме

Площадь общая
205.4 м2
Площадь дома
205.4 м2
Участок
27.94 соток
В продаже
Целый дом
Год постройки
1960
Материал стен
Дерево
Материал крыши
Шифер

Коммуникации

Водоснабжение: Центральное
Электричество: Есть

Описание

Просторный дом для жилья или бизнеса в Крейванцах, недалеко от границы с Литвой

 

Предлагается на продажу или аренду. Расположен в 30 км от литовской границы и 12 км от Ошмян (всего 5-10 минут на автомобиле).

 

Агрогородок активно развивается: здесь строится новое жилье, есть детский сад, школа, фельдшерско-акушерский пункт, магазины (один из них прямо через дорогу), почта и сельсовет. В округе имеются рабочие места. До леса 10 минут пешком, до реки и пруда 3 минуты.

 

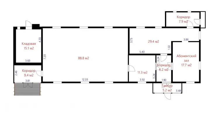
Здание раньше использовалось как дом культуры и библиотека. Участок площадью 27,9 сотки ровный и огорожен со всех сторон, расположен в центре агрогородка. Асфальтированная дорога до участка, тротуарная плитка – до самого дома.

 

Бревенчатый дом площадью 205 м2. Крыша шифер. Фундамент и крыша в хорошем состоянии. В доме 3 входа и просторные помещения. Топочная расположена в подвале, паровое отопление с твердотопливным котлом. Электричество и центральный водопровод. На участке есть хозпостройка.

 

Звоните, мы с радостью покажем объект и предоставим всю необходимую информацию.

 

 

 

Смотрите еще больше в нашем Telegram канале @kvadratnyjmetr

 

 

 

УП «Квадратный метр»

УНП: 190003285

Лицензия 02240/29_
от 17.02.2005, Министерство юстиции РБ

Договор   609/24 от 20.11.2025

.Агент
9 лет на сайте
Показать почту
Пожаловаться на объявление
Агентство недвижимости
Квадратный метр

Местоположение

Гродненская область, аг. Крейванцы, ул. Зинаиды Сломко, 1
Опубликовано: 21.11.2025