Подать БЕСПЛАТНО

Купить 3-комнатную квартиру в Прилуках, ул. Центральная, д. 3

Минская область, аг. Прилуки, ул. Центральная, 3
Показать на карте
330 968 р.
Цена за м2: 4 832 р.
Код объекта: 1181088
3 комнаты
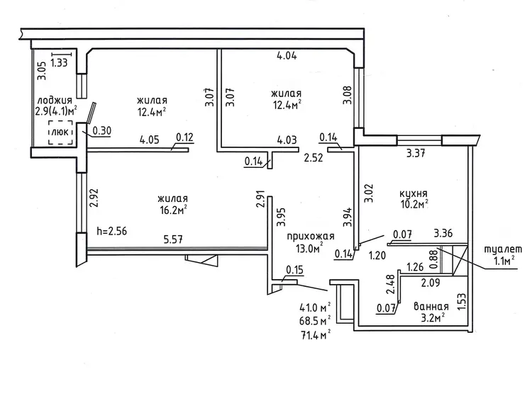
68.5 м2
8 этаж из 9
Обновлено: 11.03.2026
330 968 р.
Цена за м2: 4 832 р.
Предложить свою цену

О квартире

Площадь
68.5 м2
общая
41 м2
жилая
10.2 м2
кухня
Санузел
раздельный
Балкон
Лоджия
Тип ремонта
С отделкой

О доме

Этаж
8 из 9
Материал стен
Панельный
Год постройки
2022

Описание

Продается отличная 3-х комнатная квартира в современном агрогородке Прилуки. Дом 2022 года постройки. В квартире три изолированные комнаты и небольшая гостиная, окна на разные стороны, в квартире частично остаётся мебель. По периметру дома установлено видеонаблюдение, во дворе оборудованная детская площадка. Большой плюс этой квартиры в том что летом не бывает жарко, зимой очень тепло. Просторный тамбур на три квартиры, место для хранения велосипедов на этаже. Квартира с хорошим ремонтом, нет только кухонной мебели. Есть школа и детский сад, а также строится новая школа с бассейном. Есть магазины, аптеки, поликлиника, почта и многое другое. В сентябре этого года в аг Прилуки, рядом с домом, откроет свои двери новая школа с бассейном и стадионом. В шаговой доступности усадебно-парковый комплекс Чапских и зеленая зона с озером. Хорошее транспортное сообщение, 10 минут езды до города. Приглашаем на просмотр!!!
ВариантАгент
9 лет на сайте
Условия сделки:Обмен
Показать почту
Пожаловаться на объявление
Агентство недвижимости
Вариант

Местоположение

Минская область, аг. Прилуки, ул. Центральная, 3
Опубликовано: 11.03.2026

Возможно, вам будет интересно

Похожие объекты

На этой улицеВ этом доме
225 660 р.
Цена за м2: 5 561 р.
аг. Прилуки, ул. Центральная
1-комн. кв
42.2
18.7
9.3 м2
8 этаж из 9
225 660 р.
Цена за м2: 5 561 р.
аг. Прилуки, ул. Центральная
1-комн. кв
42.2
18.7
9.3 м2
8 этаж из 9