О доме
Коммуникации
Описание
Этот эксклюзивный двухэтажный коттедж расположен в агрогородке Сёмково, всего в 25 минутах от центра Минска. Здесь вы получите уединение, чистый воздух и комфорт загородной жизни, сохраняя удобный доступ ко всей городской инфраструктуре.
Расположение и инфраструктура
Коттедж находится в 15 минутах пешком от Заславского водохранилища – идеального места для отдыха на природе.
- Быстрый выезд на проспект Победителей.
- Развитая инфраструктура: рестораны "Сябры", "У Пунтуса", SPA, пекарня, тир, продуктовые и строительные магазины.
- Экологически чистый район – свежий воздух, тишина, живописные пейзажи.
- Координаты: 54.015998, 27.427344
О доме
- Общая площадь: 229,8 м2.
- Этажность: 2 этажа.
- Фундамент: монолитный, прочный, рассчитан на долгие годы эксплуатации.
- Материал стен: газосиликатные блоки с утеплением минеральной ватой.
- Крыша: широкие свесы в стиле швейцарских шале, бельгийский металл.
- Окна: двухкамерные стеклопакеты Salamander (Германия).
- Двери: надежная входная дверь Gerda (Польша).
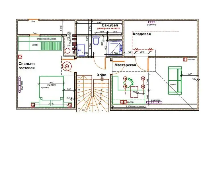
Планировка:
- 3 просторные спальни – идеально для семьи.
- Гостевая комната – дополнительное пространство для гостей или кабинета.
- 2 гардеробные – организованное хранение вещей.
- 4 санузла – удобство для всей семьи.
- Терраса с прозрачной крышей – для комфортного отдыха на свежем воздухе.
- Сауна внутри дома – ваш личный уголок релакса.
Инженерные коммуникации
Дом оснащен современными инженерными системами для комфорта и экономии ресурсов:
- Конденсационный котел с удаленным управлением (умный дом).
- Водяной теплый пол (в зонах с плиткой) с регулировкой температуры.
- Мощная вентиляция и рекуперация воздуха с возможностью удаленного управления.
- Подготовлена система сигнализации.
- Трубы металлопласт, система подачи воды выполнена с учетом долговечности.
- Бойлер косвенного нагрева 200 л – всегда горячая вода.
- Индивидуальная скважина с итальянским насосом.
- Подключен газ, проведено оптоволокно – высокая скорость интернета.
Благоустройство участка
- Площадь участка: просторная территория с качественным благоустройством.
- Дренажная система отвода воды – отсутствие проблем с влажностью.
- Разуклонка участка, мощение дорожек и отмостка.
- Газон датского производства, уложена сетка от кротов.
- Ограждение:
- Плотный забор из бельгийского металла с высоким содержанием цинка.
- Фасадная часть – бельгийский кирпич Vandersanden, баварская кладка.
- Заполнение – ДПК доска Outdoor (Канада).
- Автоматические ворота Alutex.
Отделочные работы и материалы
- Пол:
В спальных комнатах – натуральный паркет.
На втором этаже – немецкий ламинат.
В остальных помещениях – итальянский керамогранит (Ariana Epoque). - Санузлы: керамогранит LEA ceramiche (Италия) и Aparici (Испания).
- Камин: облицовка Ultra Onici (Италия), топка Acaminetti (Италия), каленое стекло.
- Подоконники: натуральный камень.
- Лестница: массив дуба и ясеня.
Что осталось сделать?
- Покраска фасада и внутренних стен.
- Монтаж мебели и установка межкомнатных дверей.
Этот коттедж – идеальный вариант для тех, кто ищет комфортную, современную и престижную загородную недвижимость.
Дополнительные услуги:
Хотите продать свою недвижимость? Помогу быстро и выгодно!
Консультация по ипотеке и кредитованию – найду оптимальные условия.
Подбор квартиры
Полное сопровождение сделки
Я всегда на связи! Доступна 24/7 в Viber / Telegram / WhatsApp
Срочно! Чистая продажа! Успейте купить – звоните прямо сейчас!

















