Выберите валюту для сайта:
BYN
Подать БЕСПЛАТНО

Купить 1-этажную дачу в Астра Гродненская область, 54000USD, код 183142

71.7 м2
165 484 р.
Дача
Город Астра
Адрес Астра
Год постройки 2012
  
Общая площадь 71.7 м2
Участок 7.64 соток
Площадь дома 71.7 м2
Этажей 1
Материал стен Блоки
Отделка С ремонтом
Тип отопления Газовое
Водоснабжение Скважина

Описание

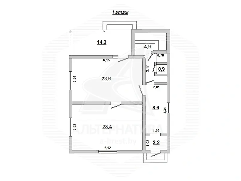
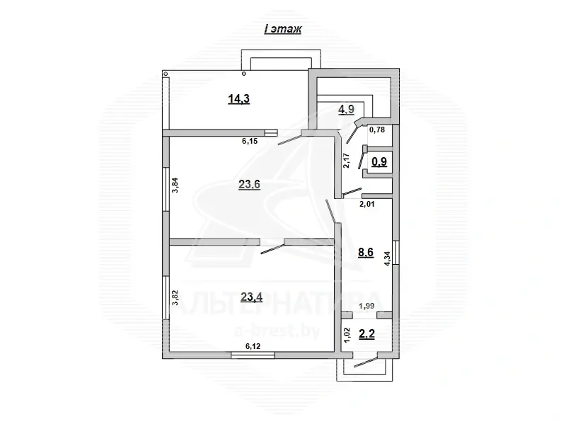
Дачный дом жилого типа в Брестском р-не. 2012 г.п. 1 этаж. Общ.- 71,7 кв.м, 2 комнаты. Стены: материал - газосиликатный блок; утепление - пенополистирол (пенопласт); отделка фасада - штукатурка "американка". Кровля: еврошифер (ондулин). Фундамент: ленточный монолитный; материал - бетон. Коммуникации: отопление - газовый котел (через теплотрассу), газ - централизованный (в доме), водоснабжение - скважина и гидрофор, электричество - централизованное (по улице), канализация - автономная. Хоз.постройки: летняя кухня, сарай. Участок - 0,0764 га. Лот - 251166. Смотреть подробнее.

Здесь можно подписаться на рассылку новых предложений и снижения цен по ДАЧАМ и УЧАСТКАМ в Брестском регионе прямо Вам в Viber или Telegram ЗАО «АЛЬТЕРНАТИВА Брест». УНП 291427570 Лицензия № 02240/303 от 02.02.2016г. Договор номер 1166/1 от 12.06.2025
Код объекта: 183142 Договор с собственником: 12.06.2025 №1166/1 Опубликовано: 13.06.2025 Обновлено: 13.03.2026
0 / 7 / 181
Дача, 71.7 м2
Астра
162 475 р.
Усюкевич Денис Владимирович
Пожалуйста, скажите, что нашли этот объект на Domovita.by
+
Фильтр сохранен