Выберите валюту для сайта:
BYN
Подать БЕСПЛАТНО

Продажа 2-этажной дачи в Астра Гродненская область, 79000USD, код 168417

123.1 м2
Дача
Город Астра
Адрес Астра
  
Общая площадь 123.1 м2
Участок 5.94 соток
Площадь дома 123.1 м2
Этажей 2
Материал стен Дерево
Отделка С ремонтом
Тип отопления -
Водоснабжение Скважина
Удобства
Водоем

Описание

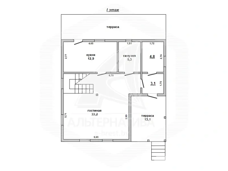
Дачный домик жилого типа в Брестском р-не. 2 этажа. Общ.СНБ - 136,2 кв.м, общ.- 123,1 кв.м, жил.- 78,4 кв.м, кухн.-12,9 кв.м. 4 комнаты. Стены: материал - строительный брус; утепление - базальтовая вата; отделка фасада - блок-хаус. Кровля: ондулин. Фундамент: свайный винтовой; материал - бетон; подушка - песчаная. Коммуникации: отопление - котел на твердом топливе, газ - централизованный, водоснабжение - скважина и гидрофор, электричество - централизованное, канализация - автономная. Хоз.постройки: сарай, вольер. Рядом водоем. Участок - 0,0594 га. Лот - 220544. Смотреть подробнее.

Здесь можно подписаться на рассылку новых предложений и снижения цен по ДАЧАМ и УЧАСТКАМ в Брестском регионе прямо Вам в Viber или Telegram ЗАО «АЛЬТЕРНАТИВА Брест». УНП 291427570 Лицензия № 02240/303 от 02.02.2016г. Договор номер 544/1 от 28.02.2022
Код объекта: 168417 Договор с собственником: 28.02.2022 №544/1 Опубликовано: 02.03.2022 Обновлено: 04.12.2025
0 / 2 / 75
Дача, 123.1 м2
Астра
228 760 р.
Усюкевич Денис Владимирович
Пожалуйста, скажите, что нашли этот объект на Domovita.by
+
Фильтр сохранен