О доме
Площадь общая
363 м2
Площадь дома
363 м2
Участок
89 соток
В продаже
Целый дом
Готовность дома, %
100
Год постройки
2010
Материал стен
Кирпич
Коммуникации
Водоснабжение: Центральное
Газ: В доме
Электричество: Есть
Канализация: Есть
Описание
Предлагается уникальный жилой комплекс в одном из самых живописных мест Смолевичского района.
Ключевые преимущества:
- Экслюзивная локация
- Шаговая доступность от леса и собственного озера
- Проект дома продуман до мелочей: удобное зонирование, практичные материалы и теплоизоляция
- Готовый отдых: на участке 0.89 га (в частной собственности) 2 гостевых дома, ресторан, баня, летняя беседка, зона «барбекю», площадка для гольфа
- Безопасность: видеонаблюдение по периметру, ограждение - бетонный забор, электрораспашные ворота
Основной дом:
- 2 уровня
- Площадь 363 м.кв, построен из красного кирпича, утеплен (утеплитель ISOVER).
- Крыша – модульная черепица Rannila (производство Финляндия), утеплена ватой.
- Окна – стеклопакеты ПВХ Rehau 3-х камерные.
- Коммуникации: вода – скважина до 40 м с насосом Grundfos, канализация – переливная.
- Пол – плитка (производство Польша), доска, стены – выровнены, обои: Испания, Германия, потолки – 2.8м, выровнены и побелены, в гостиной натяжной потолок, лестница – дуб/сосна.
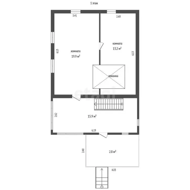
- 1-й этаж: кухня 15 м.кв., кухонный гарнитур дуб-массив, техника: газовая панель и духовой шкаф, вытяжка NEFF (производство Германия), холодильник и телевизор TOSHIBA (производство Япония); гостиная 46.9 м.кв с камином, обеденной группой, сервантами, кожанным диваном и домашним кинотеатром LG; 2 спальни по 15 м.кв; санузел – инталляция производство Испания и Италия, душевая кабина, стиральная машина LG; гардеробная 14.4 м.кв с сушилкой автоматом производства Bosch находится рядом с библиотекой и шкафом-купе.
- 2-й этаж: 4 меблированные комнаты – 25.3. м.кв, 6 м.кв, 13.5 м.кв, гостевая комната 19.1 м.кв, холл – 31.5 м.кв.
- Цокольный этаж состоит из: гаража 39.6 м.кв со входом в дом на 2 машины, высота 2.23 м и топочной – газовый 2-х контурный котел.
На участке расположены 2 гостевых дома.
Гостевой дом №1:
- 2010 года постройки
- Площадь 85 м.кв.
- В цоколе расположена сауна с бассейном. Предусмотрен подогрев воды, 2 душевые, санузел, комната отдыха. В сауне котел на дровах.
- Полы – плитка, «теплые полы», на стенах электрические «французские панели».
- 1-й этаж: бильярдная, жилая комната и кухня-столовая.
- 2-й этаж: 3 жилые комнаты, санузел и душевая кабина.
Гостевой дом №2:
- Площадь 73.6 м.кв
- Бревно, стены утеплены ISOVER. Крыша – мягкая кровля ондулин.
- Гостиная 19.6 м.кв с кухонным гарнитуром и камином, санузел с душевой кабиной.
- Терраса 21 м.кв. открытая.
- На 2-м этаже 2 жилые комнаты в стиле «деревенского кантри».
- Летняя веранда 288 м.кв. отапливаемая, остеклена по периметру.
Лайт зона с фонтанами и зоной барбекю.
Ресторан площадью 72 м.кв: банкетный зал на 100 посадочных мест, кухонная зона с специальным оборудованием: 2 плиты + 2 мойки + 2 холодильника, 2 санузла, умывальная зона. Отопление на газу.
Мы продаем не только недвижимость, а готовый сценарий жизни, где каждая деталь работает на Ваш комфорт!
ООО «Партнер для всех», УНП 690665135, лицензия Министерства юстиции Республики Беларусь № 02240/321 от 02.12.2016, договор на оказание риэлтерских услуг № 113/7 от 16.10.2025г
Ирина — Агент
8 лет на сайте
Показать почту
Пожаловаться на объявление
Агентство недвижимости
Партнер для всех
УНП: 690665135 Лицензия: от 02.12.2016 № 210
Договор №: 113/7 от 2025-10-16

















