О доме
Удобства
Коммуникации
Описание
Рады представить вашему вниманию уникальный по своим характеристикам и назначению объект -
Баня-Дом площадью 74м.кв!
Просторный участок площадью 10 соток позволяет организовать множество зон для отдыха и времяпрепровождения. На участке УЖЕ подготовлен фундамент и нулевой цикл для дальнейшего строительства ещё одного жилого дома и беседки, что значительно упростит процесс облагораживания участка и сэкономит ваше время!
ОСНОВНЫЕ ХАРАКТЕРИСТИКИ И ПРЕИМУЩЕСТВА
________________________________________________________
О̲б̲ъ̲е̲д̲и̲н̲е̲н̲н̲а̲я̲ ̲к̲у̲х̲н̲я̲-̲г̲о̲с̲т̲и̲н̲а̲я̲ - 20 м²
• стильный и функциональный кухонный гарнитур
• качественная бытовая техника (посудомоечная машина, варочная панель, духовой шкаф)
• мебель в обеденной зоне
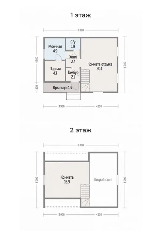
П̲а̲р̲н̲а̲я̲ - почти 5 м²
• современная банная печь
• полностью оборудованное по всем стандартам пространство
Д̲у̲ш̲е̲в̲а̲я̲ - 5 м²
• уже установлен поддон
• центральное водоснабжение
• бойлер
С̲а̲н̲у̲з̲е̲л̲
Полностью оборудован. Для канализации предусмотрены сливные колодцы.
М̲а̲н̲с̲а̲р̲д̲н̲ы̲й̲ ̲э̲т̲а̲ж̲ - 16 м²
Просторное помещение позволяет организовать дополнительную зону отдыха или хранения.
Т̲е̲р̲р̲а̲с̲а̲ - 37.5 м²
Дает возможность организации еще одного места отдыха на свежем воздухе
• выложена тротуарной плиткой
Абсолютно все коммуникации в доме! На кухне распланированы подводы под стиральную и посудомоечную машину! К дому подведен газ и имеется разрешение на его подключение.
Сам дом также выполнен исключительно из высококачественных материалов:
• клееный брус (покрыт защитной краской и обработан лаком)
• кровля- профнастил
• окна ПВХ во всех помещениях
Отличная инфраструктура! В шаговой доступности расположено все необходимое для комфортной жизни:
• большое количество магазинов
• гимназия и детский сад
• сквер
• остановки общественного транспорта
• в 2.5 км от дома- река Мышанка со специально оборудованным местом для отдыха и плавания
Дом станет идеальным и универсальным вариантом как для собственного проживания, так и для бизнеса!
Не упустите возможность стать владельцем дома-мечты! Рассмотрим все варианты обмена!!! Квартира или автомобиль!
ЦЕНА СНИЖЕНА!
Торги! Быстрый выход на сделку!












