Подать БЕСПЛАТНО

Продажа полдома в 1-этажном доме в Барановичах, ул. Куйбышева, д. 30, код 656689

Брестская область, г. Барановичи, ул. Куйбышева, 30
Показать на карте
91 843 р.
Код объекта: 656689
48.3 м2
15 соток
Обновлено: 11.02.2026
91 843 р.
Предложить свою цену

О доме

Площадь общая
48.3 м2
Площадь дома
48.3 м2
Участок
15 соток
В продаже
Полдома
Год постройки
1939
Материал крыши
Шифер

Коммуникации

Водоснабжение: Центральное
Газ: В доме
Электричество: Есть
Канализация: Есть

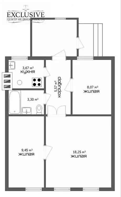
Описание

Продается половина жилого дома по ул. Куйбышева.

Уютный брусчатый дом квартирного типа, практически в центре города. В доме есть все для комфортной жизни.

Общая площадь - 48.32 м2, жилая- 35.78 м2, кухня - 3.67 м2.

3 жилые комнаты, две изолированные одна проходная.

Установлены пластиковые окна с отличной шума и теплоизоляцией, частично на полу уложен ламинат, сан. узел совмещенный, отделан плиткой.

Подведены все коммуникации: канализация - центральная, водоснабжение - центральное, установлены колонка и газовый котел.

К данной квартире относится участок в 15 соток, рядом с домом сарай, огород, растут плодово- ягодные деревья.

В шаговой доступности от центра, рядом с домом: продовольственные магазины, школа №14, поликлиника, больница, рестораны "Папарать кветка" ," Крокус", "Старый парк" и "Молодой парк". Все условия для комфортной жизни.

Более подробную информацию можно узнать по телефону.

Агент
5 лет на сайте
Показать почту
Пожаловаться на объявление
Агентство недвижимости
«Центр недвижимости Эксклюзив»

Местоположение

Брестская область, г. Барановичи, ул. Куйбышева, 30
Опубликовано: 11.02.2026