Подать БЕСПЛАТНО

ОБЪЕКТ В АРХИВЕ

Фотографии отсутствуют

Продажа 2-этажного коттеджа в Барановичах, Брестская область ул. Загуменная, 82900USD, код 643126

Брестская область, г. Барановичи, ул. Загуменная
Показать на карте
250 616 р.
Код объекта: 643126
261.1 м2
13.32 соток
Обновлено: 18.11.2024
250 616 р.
Предложить свою цену

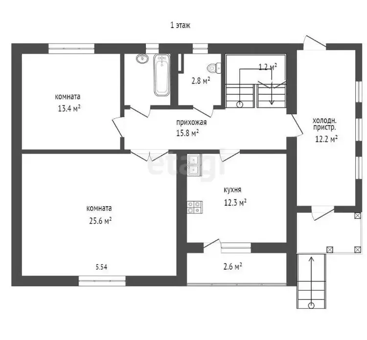
О доме

Площадь общая
261.1 м2
Площадь дома
261.1 м2
Участок
13.32 соток
В продаже
Целый дом
Готовность дома, %
100
Год постройки
2002
Материал стен
Кирпич

Удобства

Гараж

Коммуникации

Водоснабжение: Колодец
Электричество: Есть
Канализация: Есть

Описание

  

 

Продается просторный 2-хэтажный кирпичный дом в г. Барановичи!

Этот отличный дом, построенный в 2002 году, находится в непосредственной близости от знаменитого зоопарка «Парк животных», что делает его идеальным местом для семейной жизни.Вся инфраструктура находится рядом!

Характеристики:

  • Дом построен из кирпича, с окнами ПВХ и плитами перекрытия на всех этажах.
  • На первом этаже расположены 2 просторные жилые комнаты (28 м2 и 16,5 м2), кухня (12,3 м2), ванная и туалет.
  • На втором этаже находятся 3 комнаты (28 м2, 17 м2 и 11 м2), санузел и веранда.
  • Ровный участок площадью 13 соток с частично оформленным газоном и большим садом, где растут яблони, груши, сливы, виноград и голубика.

     Современная встроенная кухня, гараж под домом и хозпостройки на участке обеспечат вам комфорт и удобство. Участок огражден забором, что добавляет уединения и безопасности.

Не упустите возможность стать владельцем этого замечательного дома! Звоните для получения дополнительной информации и записи на просмотр.

   Рассмотрим варианты обмена на квартиры. Звоните - организуем просмотр!!!!!

ООО «ЭТАЖИ юнайтед»

УНП: 193673318

Договор 821/1 от 16.06.2025

Лицензия на оказание риэлтерских услуг №02240/460 МЮ РБ от 03.04.2023

СергейАгент
2 года на сайте
Показать почту
Пожаловаться на объявление
Агентство недвижимости
ООО «ЭТАЖИ юнайтед»

Местоположение

Брестская область, г. Барановичи, ул. Загуменная
Опубликовано: 18.11.2024