Подать БЕСПЛАТНО

ОБЪЕКТ В АРХИВЕ

Продать 2-этажный дом в Беларучах, Минская область , 94400USD, код 646209

Минская область, д. Беларучи,
Показать на карте
Мядельское направление
19 км от МКАД
267 482 р.
Код объекта: 646209
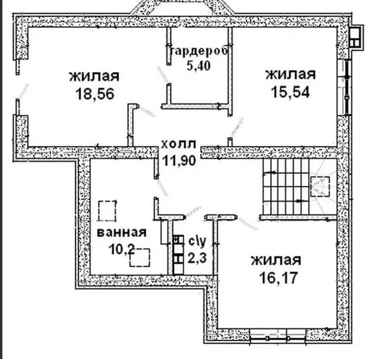
199.7 м2
10.2 соток
Обновлено: 26.02.2025
267 482 р.
Предложить свою цену

О доме

Площадь общая
199.7 м2
Площадь дома
199.7 м2
Участок
10.2 соток
В продаже
Целый дом
Готовность дома, %
100
Год постройки
2023

Коммуникации

Водоснабжение: Колодец
Газ: В доме
Электричество: Есть

Описание

Современный дом для круглогодичного проживания рядом с Вячей, 18 км от МКАД

Садовое товарищество «Беларучи» современный поселок, в котором много домов для круглогодичного проживания. Есть перспектива вывода в населенный пункт

 

Современный дом (площадь 199.7 м2) в живописной местности рядом с водохранилищем Вяча

Идеальное сочетание природы и безопасного комфорта! Готовность 80%

· Дорога: скоростная трасса со скоростью 120 км/ч

Безопасность и комфорт: в садовом товариществе установлены шлагбаумы на въезде, видеонаблюдение и фонарное освещение; территория огорожена по периметру

Участок: 10 соток, ровный, со всех сторон огорожен. Выполнены необходимые геодезические работы, для выбора оптимального места строительства дома и возведения границ участка

· Дом:

- фундамент – монолитная плита с 6 тоннами арматуры, что гарантирует надежность всего строения;

- стены из керамзитобетонных блоков 400 мм.;

- окна Rehau, толщиной профиля 86 мм.;

- кровля - модульная мателлочерепица (производство EС)

Коммуникации:

- собственная скважина: вода заведена в дом; - также на участке имеется сезонная вода садового товарищества;

- электричество заведено в дом;

- СТ газифицировано, газ по улице рядом с домом; имеется проект (не согласован). Стоимость вступления в кооператив для проведения газа к дому – 1200 бел. рублей со всеми работами;

- канализация местная: в ближайшее время планируется установка септика!

 

Дом строился по индивидуальному проекту для себя, предназначен для круглогодичного комфортного проживания и в соответствии со всеми строительными нормами

 

В стоимость включены:

• 200 м2 тротуарной плитки для благоустройства территории;

• Минвата для утепления кровли;

• Архитектурный проект дома

 

·  Возможен обмен на квартиру в Минске либо продажа Вашей недвижимости для покупки этого варианта по рыночной цене

·  Оформление кредита в нашем офисе

·  Юридическое сопровождение на всех этапах сделки!

Лицензия: №02240/362 от 31.07.2018, Министерство юстиции РБ

АннаАгент
7 лет на сайте
Показать почту
Пожаловаться на объявление
Агентство недвижимости
Фаттория Плюс

Местоположение

Минская область, д. Беларучи,
Опубликовано: 26.02.2025