Подать БЕСПЛАТНО

Продать 1-этажный коттедж в Блони, Минская область ул. Садовая, д. 13/а, 58000USD, код 653096

Минская область, аг. Блонь, ул. Садовая, 13/а
Показать на карте
Пуховичское направление
52 км от МКАД
173 713 р.
Код объекта: 653096
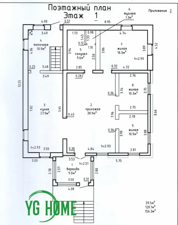
128.1 м2
18 соток
Обновлено: 04.09.2025
173 713 р.
Предложить свою цену

О доме

Площадь общая
128.1 м2
Площадь дома
128.1 м2
Участок
18 соток
В продаже
Целый дом
Готовность дома, %
100
Год постройки
2023
Материал стен
Блоки

Коммуникации

Водоснабжение: Колодец
Газ: В доме
Электричество: Есть
Канализация: Есть

Описание

Характеристики:
Дом под чистовую отделку.

Сделана полная реконструкция дома в 2023 году, наружные стены выполнены из газосиликатного блока 300 мм, утеплитель каменная вата 70 мм, снаружи декоративная штукатурка ; фундамент - ленточный железобетон 300 мм; под домом сделан подвальный этаж в полный рост; крыша металлочерепица; окна двухкамерные стеклопакеты. В доме выполнена чистовая отделка,  стены оштукатурены и ошпаклёваны;  потолки подготовлены к покраске;  стяжка пола с утеплением 5 см. В доме грамотная планировка – большая гостиная и кухня-столовая, три жилые комнаты и мансардный этаж (возможность увеличения жилой площади).

Коммуникации: разведены по дому: газ(система отопления:  установлены двухконтурный газовый котел и радиаторы в комнатах), электричество 220/380 Вт разведено по всему дому; канализация местная; водоснабжение  из скважины глубиной 30 м.( установлен фильтр тонкой очистки воды), так же установлен бойлер косвенного нагрева воды, расширительный бак; к дому проведено оптоволокно, а значит у вас будет скоростной интернет и телефон. Есть точка выхода воды снаружи дома для хознужд.

Транспортное сообщение: недалеко от дома остановка общественного транспорта, откуда ездятмаршрутки, автобусы, электрички с М.Горки; на машине около 45 минут до Минска по скоростной трассе М-5.  Отличные подъездные пути, асфальтированная дорога почти до самого дома.
Инфраструктура: дом расположен в центральной части аг Блонь, который граничит с райцентром г.Марьина Горка, до которого 10 мин пешком до или 3 мин езды, где находятся  школы, детские сады, банки, почта, аптеки, поликлиника, больница,  продуктовые, хозяйственные , строительные магазины и др., рынки,  бассейн, кафе. Также недалеко от дома находится станция проката байдарок, для сплавов по реке Титовка и располагается центр экологического туризма «Акварель»: комплекс развлечений для детей и взрослых, зоосад, рыбалка, рестораны и кафе - идеальное место для отдыха. В округе грибные леса и река.

Чистая продажа!

Тихие, чистые места, рядом лес с ягодами и грибами. Недалеко река Титовка с маршрутами для сплавов на байдарках и озера с рыбой.

Покажем в любое удобное для вас время.  Поможем с продажей вашей недвижимости. 

Окажем помощь в кредитовании!

Звоните, приезжайте и покупайте!

Общество с ограниченной ответственностью «ЮГ Хоум»

УНП: 193511758

Лицензия: 02240/412 от 19.03.2021, Министерство юстиции РБ

НаталияАгент
4 года на сайте
Показать почту
Пожаловаться на объявление
Агентство недвижимости
ЮГ Хоум

Местоположение

Минская область, аг. Блонь, ул. Садовая, 13/а
Опубликовано: 04.09.2025